
Sophie Tremblay
AIRA Located in one of the most extensively developed areas in the north of the city of Querétaro, and 100m from one of the principal avenues, AIRA is a tower of 35 apartments. The project is located on a narrow and deep site measuring 2,100 m2. Its compact volumetry reflects the intention to generate open space and to create green areas and offers a forceful vertical response to an area dominated by horizontal architecture.

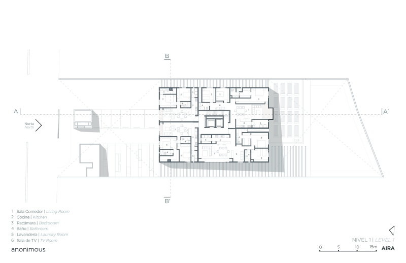
With 10,382m2 of construction, seven apartment prototypes are distributed four per level. Levels 1, 2, 3, 4, 7 and 8 are standard floor plans with apartments on one floor ranging from 97m2 to 157m2. On levels 5 and 6 there is a special apartment type with two levels and 170m2 of floor space. On levels 9 and 10 there are two penthouses per floor, those facing south measure 260m2 and those facing north 236m2.

More than 1,000m2 of plaza, terraces, and gardens complement the living space of the project. The public amenity areas occupy the base and the top of the tower. The construction occupies the center of the site, with a tree-lined plaza for public use to the north and a more private garden to the south. The Lobby welcomes users and is followed by spaces that complement each other, functioning together or independently.

To one side, the event room extends to the pergola terrace, fostering time spent outdoors, and to the other, the roofed pool and terrace, which are complemented by the barbecue area and gardens. Rising from the abutment, the west façade seeks privileged views of a wooded residential area and the imposing Querétaro sunset. To the north are views of the distant mountain range that divides the states of Querétaro and Guanajuato.

From the outside, the monolith presents perforations and cut-outs, while from the inside the views are framed and the space is made comfortable by inviting air and light into the spaces. Sculpting the solid to work with the void: the final shape of the building emerges from treating the volumetry as if it were a stone sculpture.

The pigmented concrete in sandy tones was the basis for shaping the composition of the building, while double-height compositions form the top of the tower. The rhythm and movement of the openings are inspired by the fact that each person and each family have unique needs and tastes, meaning that no level is the same, even if they are standard floor plans. The terraces or the separation between the abutments serve to dramatize the volumetry, and deep cracks appear that are announced on all four facades, inviting the air and light to tour the building.

A constant presence of the natural world was sought, and all floors are enlivened by this relationship; green hues are painted by nature with the planters that are distributed over the facades. The walls of pigmented concrete allude to the color of the soil in the area; they are structure and skin at the same time. The color of the different nuances of the material generates subtlety in the volumetry and allows the building to age in a more dignified way over time. Aira has been recognized with the 2nd place in the category “Residential” at the Cemex 2018 Awards.
Project Info
Architects: anonimous
Country: Mexico, Santiago de Querétaro
Area: 10382 m²
Year: 2018
Photographs: Zolezzi Uribe, Yoshihiro Koitani
Media & Marketing Anonimous: María Luisa Guzmán
Construction: anonimous
Development: Grupo Momentum
Structure: 3mdc Grupo Inmobiliario
Masonry/Finishes: COMAQSO
Carpentry: Hagamos Muebles & AVA integra
Aluminium Work: IAVA & BITALUM
Principal Anonimous: Alfonso Jiménez
Direction Anonimous Cdmx: Bárbara Trujillo
Architecture Team: Edgar Alarcón, Joaquín Ríos, César Medina, Ian Pablo Amores, Nadia Ferrufino, David Muñoz, Heliana Echavarria, Yesenia Ruiz, Carlos Cervantes, José Sánchez, Christopher Franco, Crystal Martínez






































Tags: 2018AiraanonimousConcreteMexicoSantiago de QuerétaroYoshihiro KoitaniZolezzi Uribe

Sophie Tremblay
Sophie Tremblay is a Montreal-based architectural editor and designer with a focus on sustainable urban development. A McGill University architecture graduate, she began her career in adaptive reuse, blending modern design with historical structures. As a Project Editor at Arch2O, she curates stories that connect traditional practice with forward-thinking design. Her writing highlights architecture’s role in community engagement and social impact. Sophie has contributed to Canadian Architect and continues to collaborate with local studios on community-driven projects throughout Quebec, maintaining a hands-on approach that informs both her design sensibility and editorial perspective.