
Anastasia Andreieva
New life at Franz-Josefs-Bahnhof: Delugan Meissl Associated Architects (DMAA) and Josef Weichenberger Architects (JWA) transformed the terminus station and the office building above it under the name Francis from an impassable barrier in the centre of the district into a transparently permeable centerpiece of the new Althan Quartier. The decisive factor in the decision to convert, i.e., to demolish, redevelop, and add stories, was the significant impact on the ecological balance of the project. This meant that considerable amounts of CO2 could be saved.

From a split neighborhood to casual transparency — With Francis and the Althan Quartier around Franz-Josefs-Bahnhof (Franz-Josef-Station), a new urban and connecting quarter is being established in Vienna’s ninth district. New thoroughfares form a bridge between the Spittelau and Lichtental districts, which were long separated by the railway tracks of the terminus station and the previously inaccessible former Bank Austria building. The 2.4-hectare site of the Althan Quartier now serves as a central connecting element in the district. This means that one of the main objectives of the conversion has been achieved: a better quality of stay and life for the neighborhood.

Conversion or the beauty of chances — The project illustrates the potential for urban development and the environment that lies in the transformation of existing buildings. Particularly in times of land and resource scarcity, the preservation and further development of valuable existing structures is worthwhile. As a large proportion of the so-called grey emissions is bound up in the steel and concrete supporting structure, conversion in the case of Francis means enormous ecological benefits: instead of 27,595 tonnes of CO2 for demolition and new construction, the value for conversion is 8,970 tonnes of CO2 – a saving of 67 percent. According to the results of a study by sustainability expert, architect, and civil engineer Werner Sobek, 122,480 tonnes of concrete and 10,944 tonnes of steel were saved, which is groundbreaking regarding the shortage of raw materials and climate change. In addition, the quality of life of local residents was maintained during the renovation – an estimated 10,000 lorry journeys were avoided by not demolishing and rebuilding the existing. Necessary dismantling work, removal, and recycling were carried out inside the building and in the underground loading yard, minimizing dust, noise, and construction site traffic.

Study and analysis of the existing building — The new design was preceded by an extensive reading and understanding of the existing building from the 1970s. Using historical plans and documents, DMAA and JWA analyzed and internalized the initial ideas of the original architect, Karl Schwanzer to make a fundamental decision between demolition and conversion. With the help of BIM (Building Information Modeling), a digital twin of the existing building was created, which enabled comprehensive studies of the concrete cubature and the consequences of possible adaptations. The potential of the existing building with its economically optimized reinforced concrete structure, which was exceptional for the 1970s, was thoroughly examined in terms of statics, noise, and fire protection, as well as suitability in terms of building physics. Characteristics of the existing building in its function as the headquarters of Bank Austria were the mirrored façade and a striking, expansive, but almost unused staircase. The mirrored façade emphasized the hermetic nature of the building, while the monumental gesture of the external staircase dominated the area of Julius-Tandler-Platz. The remodeling allowed these outdated stylistic elements to be removed.

Development of the new — One of the main focuses of the planning process was to create a new opening to the neighborhood: new urban places to linger, semi-public spaces, barrier-free access, and restaurants with open spaces were to be created. The dimensions and substance of the office building were retained, but new open spaces were created, making Julius-Tandler-Platz much more attractive with a new look and increased accessibility. Situated nine meters above street level and above the tracks of the railway tunnel, the new plaza level in the inner courtyard links the valuable open spaces of Spittelauer Platz, Lichtentaler Platz, and Julius-Tandler-Platz. Decisive premises of the project development were the pedestrian permeability, the opening to Julius-Tandler-Platz, the broadest possible mix of uses, the redensification of an urban core zone, and the harmonious integration into the urban space.

The façade of the building was freed from its mirroring. The new stainless steel cladding of the façade has a glare-free and silky matt appearance thanks to its fine embossing, while the terraces create additional open spaces for restaurants and offices and a counter-design to the building’s previous seclusion. Another planning focus was on the design of a vivid base zone. The extensive opening of the base achieves the desired spatial relationship to Julius-Tandler-Platz, makes the station hall more attractive, and creates an inviting connection to the central plaza level. At the northern rear of the building, a connecting structure from the 1970s, between the office complex and the garage, was removed in order to return to Karl Schwanzer’s original idea of a cubic solitary building.

The redensification was achieved by means of a two-story extension, which was staggered back in line with the contours of the building and thus blends almost imperceptibly into the physiognomy of the existing structure. The eight office stories with their spacious outdoor areas offer around 40,000 m² of usable space, looking out over the neighboring palaces, Liechtenstein Park, and across the city centre to St. Stephen’s Cathedral. The optimal connection to the local and long-distance transport network, with all major means of public transport accessible within a few minutes, is forward-looking. The connection to the nearby bike routes along the Danube Canal is just as ideal. Secure bicycle parking spaces are available on the first floor of Francis. The intelligence of the building is also evident in the supply and disposal system: this is organized via the underground loading yard, thus keeping above-ground delivery traffic to a minimum.

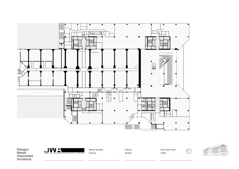
The conversion project benefits from the intelligent economy of the existing building’s skeleton structure. Column spacing of 10 meters and the removable prefabricated ceiling allow the greatest possible flexibility for the design of the conversion. Attractive room heights of up to 3.5 meters, which are rarely realized in new buildings, provide flair and brightness. The comprehensive adaptation to today’s safety standards, safety technology, building physics, statics, and earthquake resistance, as well as the achievement of gold certification from the ÖGNI (Austrian Sustainable Building Council/ Österreichische Gesellschaft für Nachhaltige Immobilienwirtschaft) through high ecological standards for building material, underline the importance of this project as a model for future urban transformations. The Francis conversion project thus demonstrates the intelligent utilization of existing building structures and sets new standards in terms of ecological sustainability and urban integration.

Project info:
- Architects: Delugan Meissl Associated Architects
- Country: Austria
- Area: 60000 m²
- Year: 2024
- Photographs: Christian Pichlkastner, Gebhard Sengmüller
- Structural Engineering: Spirk + Partner
- Lighting Design: Bartenbach
- Building Physics: Pilz und Partner
- HVACR: ICE Project Group
- Visualization: Outline Pictures, WOOW Studio
- Collaboration: Josef Weichenberger Architects
- Facade Design: Dr Pfeiler GmbH
- Electrics: ICE Project Group
- Fire Safety: Brandrat
- Surveyors: Vermessung Meixner
- Traffic Planner: Traffix
- Project Management: IC
- Client: Eristalis Holding GmbH












































Tags: 2024Althan QuartierChristian PichlkastnerDelugan Meissl Associated ArchitectsGebhard Sengmüller

Anastasia Andreieva
Anastasia Andreieva is an accomplished Architectural Projects Editor at Arch2O, bringing a unique blend of linguistic expertise and design enthusiasm to the team. Born and raised in Ukraine, she holds a Master’s degree in Languages from Taras Shevchenko National University of Kyiv. Her deep passion for architecture and visual storytelling led her to transition from translation and editorial roles into the world of design media. With a keen eye for conceptual clarity and narrative structure, Anastasia curates and presents global architectural projects with precision and flair. She is particularly drawn to parametric and digital design, cultural context, and emerging voices in architecture. When I’m not analyzing the latest architectural trends, you’ll probably find me searching for hidden gems in cityscapes or appreciating the beauty of well-crafted spaces. After all, great design—like great connections—can be found in the most unexpected places. Speaking of connections, because architecture isn’t the only thing that brings people together.