
Arch2O Team
Mankind has learned over centuries to build very efficiently according to local laws of nature, as exemplified by the Clear Water Tea House, just as plants & animals have themselves ADAPTED their habitat and genes to maximize their EFFICIENCY in their use of energy, protecting themselves and ensuring the flourishing of their species. But also, which has gotten too often lost, we have forgotten how to live in symbiosis and POETRY with nature.

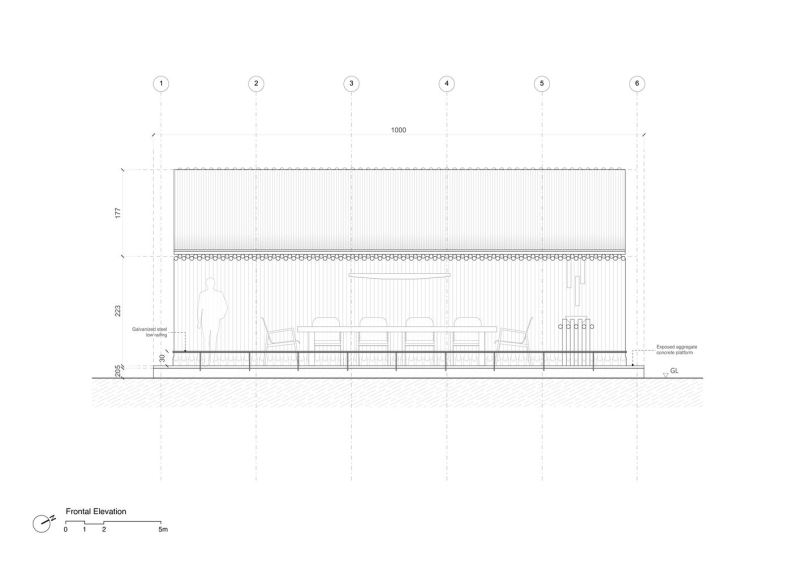
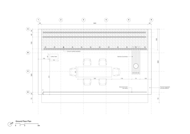
Adaptability – The Teahouse on Clear Water Mountain sits on the edge of a slope at 700 m altitude. It utilizes the Bamboo tree, a building material used in South Asia for thousands of years. Most Bamboo reaches a height of up to 6 meters within a year. Its slender trunks can bend extremely to withstand very intense win guts such as those during typhoons. It can be bent as it’s been done to minimize wind resistance and channel rain down the hillside. It can be cut in half to create a natural roof-tiling layer that shelters the teahouse from water and sun. All joints are tied using simple metal strings, reducing the construction/assembling to less than one month.

Sustainability – Bamboo is readily available and grows in Taiwan to full height within a year. Then, it will have reached its ideal strength and flexibility to be used as a building material. It is traditionally smoked to dry and resist termites and lasts as a building material for at least five years. That makes it a very low carbon footprint building material.

Holism – What excited us about this tea house is working in a Holistic way with nature. Using the materials found around it to create a shelter, celebrating the simplicity of drinking tea and being within nature, the sound of wind, light, and the sound of the river and rain. Tea ceremonies are an integral part of daily life within families but also add depth and meaning to social gatherings, and there is great value and appreciation for the uniqueness of the herbs being prepared and served. It’s not just consumption.

Buildings are organisms that have skin to protect need sun and aeration. Those were carefully considered in the design of the structure and roofing. The most fascinating evolutionary leap available to us today is our increased understanding of microbiological processes. We can learn very precisely how species adapt to extreme weather and apply their millennial-old ingenuity to architectural surfaces. There is, however, first and foremost, a need to respect nature. To appreciate its value for our sustainable quality of life and understand its fragility. We need to work with nature, protect it, and develop an intertwined trajectory to ensure our livelihood.
Project Info:
Architects: Behet Bondzio Lin Architekten
Country: NANTOU, CHINA
Area: 57 m²
Year: 2018
Photographs: YuChen Chao Photography
Lead Architect: Yu‐Han Michael Lin
Construction Company: IUE SHAN STUDIO
Landscape Designers: Behet Bondzio Lin Architekten
Lighting Designers: Behet Bondzio Lin Architekten
Project Team: Behet Bondzio Lin Architekten





























Tags: 2018BambooBehet Bondzio Lin ArchitektenChinaClear Water Tea HouseNantouYuChen Chao Photography

Arch2O Team