
Isabelle Laurent
Flourish Pavilion, In the greenhouse, where sunlight and moisture converge, emerges a sacred space for the growth of flowers and crops. Inspired by the everyday scenery of agricultural greenhouses in Changhua, Taiwan, “Flourish” features a bamboo-structured dome. This artwork utilizes agricultural materials such as bamboo and agricultural mesh, aiming to showcase the vitality of blooming flowers through modern geometric structures. The interior of the dome presents a variety of spaces, including large floral floating islands, greenhouse mist irrigation systems, original electronic music, and projection art, intending to bring a vibrant new atmosphere of spring to the public.

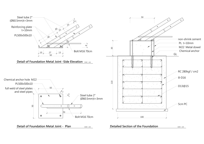
The bamboo dome of “Flourish” is constructed using heat-treated bamboo pipes and metal joints, supporting a colossal dome measuring 9 meters in height and 23 meters in length and width. The structure primarily employs thicker-diameter Moso bamboo as columns and beams, while thinner, heat-treated Makino Bamboo is pre-stressed and curved to form arches, serving as structural braces and artistic expressions for the agricultural film. Three large floral floating islands, suspended in the center of the dome and collectively weighing 400 kilograms, act as a means to reduce wind forces and stabilize the overall structural system. Bamboo and custom-made metal joints are meticulously installed layer by layer, following pre-set patterns, enhancing the precision of the bamboo structure construction.

Bamboo is primarily found in warm regions between the Earth’s north and south latitudes of 45 degrees, and it is a common material in Taiwanese forests. After undergoing high-temperature drying treatment, bamboo exhibits axial strength reaching up to 70% of that of hardwood. The presence of bamboo nodes in the middle contributes to the superior toughness of bamboo. The goal of Studio A-Light’s creation is to explore how to rapidly utilize prefabricated bamboo components in the construction of modern building materials while simultaneously showcasing the unique and elegant forms of bamboo.
Project Info
Architects: Studio A-Light
Country: Taiwan, Changhua City
Area: 415 m²
Year: 2024
Photographs: Fixer Photographic Studio























Tags: 2024Changhua CityFixer Photographic StudioFlourish PavilionStudio A-LightTaiwan

Isabelle Laurent
Isabelle Laurent is a Built Projects Editor at Arch2O, recognized for her editorial insight and passion for contemporary architecture. She holds a Master’s in Architectural Theory from École Nationale Supérieure d’Architecture de Paris-Belleville. Before joining Arch2O in 2016, she worked in a Paris-based architectural office and taught as a faculty adjunct at the École Spéciale d’Architecture in Paris. Isabelle focuses on curating projects around sustainability, adaptive reuse, and urban resilience. With a background in design and communication, she brings clarity to complex ideas and plays a key role in shaping Arch2O’s editorial