For ten years, this nearly half-acre site along the Wenatchee River was experienced the slow way, through camping trips, seasons, and time spent outdoors with friends. When the decision to build finally came, the goal was not more space, but a clearer relationship with the forest and river. Designed by Wittman Estes, this small cabin began as a base camp and ended as a full-time home shaped by patience, restraint, and firsthand knowledge of place.

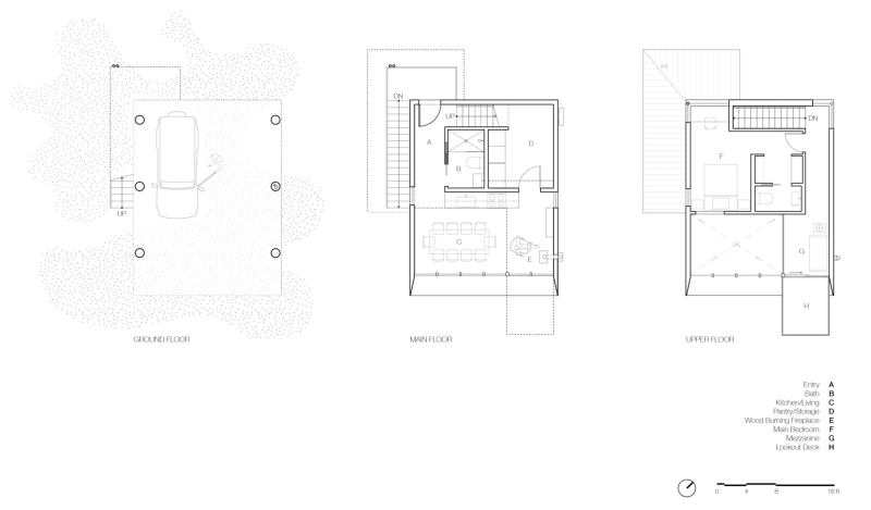
The cabin sits in Plain, Washington, within the Okanogan-Wenatchee National Forest. Because the site lies inside the river’s floodplain, the architecture responds directly to its constraints. The main floor is lifted ten feet above the ground on six concrete columns, creating a resilient structure that acknowledges the river rather than resisting it.
At just 746 square feet, the one-bedroom cabin uses a compact footprint and durable materials, including concrete and steel. Its simple form balances shelter with openness, allowing the surrounding ecosystems to remain the focus.


A single window defines the experience of the cabin. Measuring twenty feet wide and twenty-four feet high, the window wall frames the river while screening neighboring properties. It becomes the primary visual connection between inside and out, anchoring daily life to the movement of water and light.


The exterior is finished in locally sourced cedar siding and soffits, paired with standing seam metal roofing in silver. The restrained palette allows the cabin to sit quietly within the trees.
Stairs are constructed from precast concrete treads set on steel stringers, continuing the honest expression of materials from outside to in. Steel guardrails with expanded metal mesh were fabricated by the owner, reinforcing the hands-on nature of the project.




The middle level is organized as a single open room that brings together the living, dining, and kitchen areas, along with a full bathroom. This floor functions as the social heart of the cabin, where daily life unfolds around shared space rather than separate rooms.
A wood-burning fireplace sits beneath a fir-framed loft, adding warmth and focus to the room. Throughout the level, interior finishes remain minimal, creating a calm backdrop for shifting light, artwork, and views into the surrounding forest.



A custom dining table made from solid hemlock with bent steel legs anchors the dining area, paired with vintage Danish teak chairs that soften the industrial material palette. The kitchen is defined by raw steel countertops and a matching backsplash, both fabricated by the owner, giving the space a direct and utilitarian character. Aluminum kitchen casework keeps the layout efficient, while wall-mounted sconces provide focused task lighting.


Movement through the cabin is vertical, with stairs linking each level in a continuous sequence. The interior wood stair design emphasizes function over form, aligning with the overall approach of clarity and restraint.

At the top level, a loft opens to a cantilevered steel deck. Constructed from galvanized metal decking, the lookout deck extends the living space outward and upward, offering elevated views through the trees and toward the river.

The main bedroom occupies the upper level alongside the office. From here, the view portal reconnects the private space with the shared living area below and the landscape beyond.

Bathroom casework was hand-built by the owner using hemlock and painted plywood, continuing the theme of personal involvement and material honesty throughout the interior.

The clarity of the design is reflected in its drawings that reveal a cabin shaped by floodplain conditions, owner participation, and a desire to live lightly within the forest.




What began as a one-bedroom weekend cabin has become a full-time home rooted in experience rather than urgency. After ten years of camping on the site, the final structure feels less like an addition to the landscape and more like a continuation of it. Elevated above the ground, focused on the river, and shaped by restraint, this cabin shows how time spent listening to a place can lead to architecture that truly belongs.
Photography by Andrew Pogue | Architect: Wittman Estes | Wittman Estes team: Matt Wittman (Design principal), Julia Frost (design development) | Structural engineer: JWE Engineering | Builder: Steve Strode Construction and Dan Wheeler