
Isabelle Laurent
The HEYDAY is a new community hub for Bangkok University in Thailand. HEYDAY Community Hub combines a co-working space, a food court, and future restaurants all within one building, making it the latest destination for students. Located next to the university campus, the site is situated between blocky apartments that line both sides of a 1-kilometer street.

The building features three asymmetrical volumes with curved gable roofs, designed to break the monotony of the surrounding blocky apartments. This energetic and distinctive shape is intended to attract students and faculty, encouraging them to utilize the new hub.

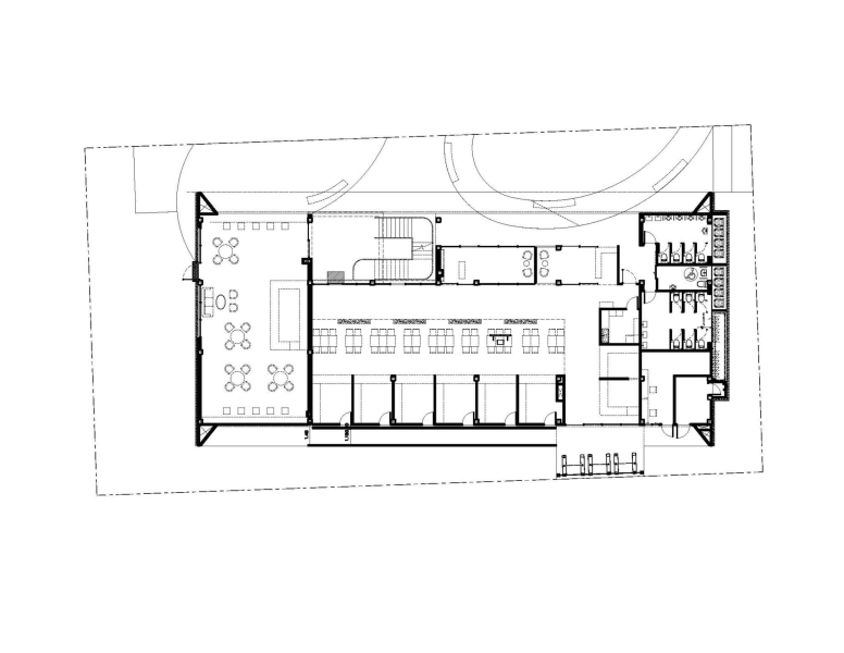
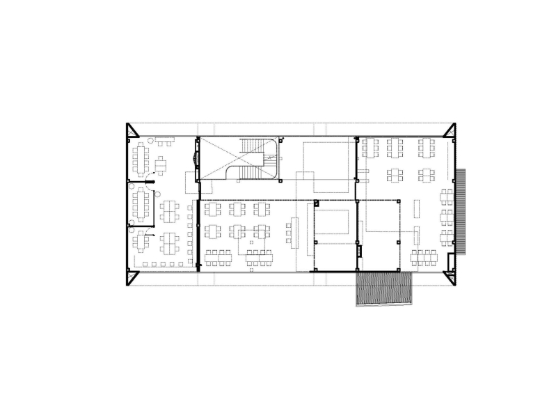
To foster connections between the campus and the adjacent apartments, plans have been established for accessibility. The two-story student hub features a food court and rental spaces on the first floor. A blue staircase leads to the co-working area on the second floor, which includes a mezzanine on one side.

The interior of this area features a wavy, curved design that interacts with the various volumes throughout the space, following the exterior’s form design. Additionally, the second floor contains two large rental spaces intended for future restaurants or cafes.

With its playful and vibrant architecture, the HEYDAY aims to be a welcoming and joyful space where students, faculty, and university personnel can gather often, serving as a common area for the entire community.
Project info:
Architects: ASWA Country: Thailand
Area: 1200 m²
Year: 2025
Photographs: Soopakorn Srisakul Lead Architects: Phuttipan Aswakool, Chotiros Techamongklapiwat


























Tags: 2025ASWAHEYDAY Community HubSoopakorn SrisakulThailand

Isabelle Laurent
Isabelle Laurent is a Built Projects Editor at Arch2O, recognized for her editorial insight and passion for contemporary architecture. She holds a Master’s in Architectural Theory from École Nationale Supérieure d’Architecture de Paris-Belleville. Before joining Arch2O in 2016, she worked in a Paris-based architectural office and taught as a faculty adjunct at the École Spéciale d’Architecture in Paris. Isabelle focuses on curating projects around sustainability, adaptive reuse, and urban resilience. With a background in design and communication, she brings clarity to complex ideas and plays a key role in shaping Arch2O’s editorial