
Anastasia Andreieva
The renovation and extension of a Hofbode II semi-detached house that aligns daily life with the rhythm of the sun. The historical postcard reads Villa Les Roses. Almost a novel by Willem Elsschot.
The villa itself has changed little. The lush green surroundings remain. The house too. Only the first-floor balcony has disappeared. A new room was built in its place. Not bad, actually. Some effort went into respecting the original façade.

Not exactly a withered rose, but still in need of care. As so often, the house needs to become both larger and more sustainable. The plot offers possibilities: besides the semi-detached structure, there’s ample room, both in width and in depth. The sun makes a graceful arc across the building’s three open sides. The house listens… to the trees, and to the sun. A new volume is not tucked behind it, but placed alongside.
A side extension, then. Not just perpendicular, but purposeful. The roof tilts deliberately: high on the east side, low on the west. We let the sun in when it’s welcome, keep it out when it’s not. From the street, the annex appears smaller than it is. Its slanted roof is planted. A green roof in conversation with the garden. Beneath it, timber and green cladding. The gutter does something odd: on one side, it’s wide and angled, making room for water and sunlight; on the other, it tapers to a thin line. Seemingly, it vanishes entirely, and the green roof runs to the edge. But the detail hides in the tilt.

The roof continues beyond the volume it covers, forming a canopy. At its tip, it rests on a brick mass: a monumental hearth. The kind of hearth that turns fire from primitive to sacred.
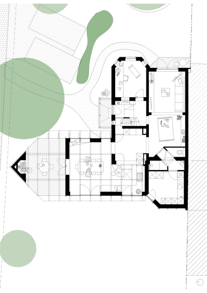
The double-height bay window at the front is mirrored at the rear. It worked then, and it still works now. Inside, the villa’s room-based architecture is gently reshaped. A sense of flow connects the spaces, yet each room keeps its own identity. Not a ballroom, but a rosary. Because that’s what this house has done for a century: create places by exception, through deviation and offset. Rooms aligned with the solstice. A sundial to show us where the light and the shadows fall.
Project info:
Architects: Marge architecten Country: Nazareth-De Pinte, Belgium
Area: 200 m²
Year: 2023
Photographs: Marnick Beerts Manufacturers: EQUITONE, Investwood, RENSON, Forbo, KERROCK, Velux Lead Team: Valérie Filliers
Design Team: Marge architecten
Engineering & Consulting > Environmental Sustainability: Struktuur
Engineering & Consulting > Structural: Stabimi
General Contractor: Dender Construct
Engineering & Consulting > Electrical: Joliet

























Tags: 2023BelgiumHofbode IIMarge architectenMarnick Beerts

Anastasia Andreieva
Anastasia Andreieva is an accomplished Architectural Projects Editor at Arch2O, bringing a unique blend of linguistic expertise and design enthusiasm to the team. Born and raised in Ukraine, she holds a Master’s degree in Languages from Taras Shevchenko National University of Kyiv. Her deep passion for architecture and visual storytelling led her to transition from translation and editorial roles into the world of design media. With a keen eye for conceptual clarity and narrative structure, Anastasia curates and presents global architectural projects with precision and flair. She is particularly drawn to parametric and digital design, cultural context, and emerging voices in architecture. When I’m not analyzing the latest architectural trends, you’ll probably find me searching for hidden gems in cityscapes or appreciating the beauty of well-crafted spaces. After all, great design—like great connections—can be found in the most unexpected places. Speaking of connections, because architecture isn’t the only thing that brings people together.