
Sophie Tremblay
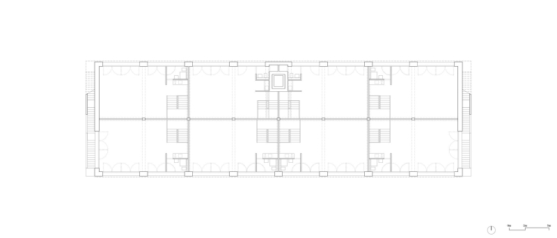
The Mixed-Use Building project layers industrial premises on the first two levels and two penthouse apartments above.
The structure of the first two floors is designed to offer maximum flexibility for the adaptation and combination of spaces according to the occupants’ needs.

To preserve the continuity of these two levels, the building does not have a stairwell for access to the apartments. Instead, a shared elevator, accessible directly from the outside, serves the apartments, which also have private external staircases located at the ends of the building.
The apartments are organized around a central core that houses the shared bathroom and kitchen units.

Circulation can occur either on the north side, through a hallway connecting the entire apartment, or on the south side through the common living areas, with the kitchen serving as a pivot between the dining room and the living room.
Project info:
Architects: Samir Alaoui Architectes Country: Forel (Lavaux), Switzerland
Area: 1634 m²
Year: 2025
Photographs: Rasmus Norlander Manufacturers: Ego Kiefer AG, PORTES BRODARD, VMZINC, WALO Bertschinger Lead Team: Samir Alaoui
Technical Team: Basile Immer, Nicolas Sternheim
Design Team: Samir Alaoui Architectes
Engineering & Consulting > Civil: Synaxis
























Tags: 2025Mixed-Use BuildingRasmus NorlanderSamir Alaoui ArchitectesSwitzerland

Sophie Tremblay
Sophie Tremblay is a Montreal-based architectural editor and designer with a focus on sustainable urban development. A McGill University architecture graduate, she began her career in adaptive reuse, blending modern design with historical structures. As a Project Editor at Arch2O, she curates stories that connect traditional practice with forward-thinking design. Her writing highlights architecture’s role in community engagement and social impact. Sophie has contributed to Canadian Architect and continues to collaborate with local studios on community-driven projects throughout Quebec, maintaining a hands-on approach that informs both her design sensibility and editorial perspective.