
Isabelle Laurent
Pergolenviertel Residential Complex describes the „block in the green“ in the urban environment between Hamburg‘s City Nord and Barmbek. The static blocks, which open up to nature with passages in the form of round arches, sit in the green space originally used as an allotment settlement, which flows through and shapes the new quarter.

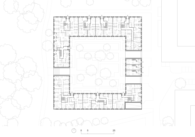
Urban situation. The Pergolenviertel describes the „block in the green“ in the urban environment between Hamburg‘s City Nord and Barmbek. To the west of the Pergolenviertel lies the Hamburg City Park. The buildings are located in the northern and southern areas of the approx. 80000m2 large property and are connected by open space. The open space is defined by the eponymous pergolas, designed as round arches that guide residents and visitors through the area. The positioning and rotation of the residential blocks in relation to each other create plaza-like street spaces with changing geometries in the southern area of the neighborhood. Structural interruptions and passageways connect street spaces with the surrounding green spaces and pathways.

Architecture. The design is based on a clear grid, which is reflected both in the external facade design and in the internal structure of the building. The urban planning principle becomes a cross-scale design theme here and even finds its visual implementation in the interior spatial effect. The geometry of the building is clearly defined. The side lengths are identical, while the building sections on the east, south, and west sides are limited to 3 and on the north side to 6 full stories formulating a conclusion.

The access to the apartments is almost exclusively through the communally used inner courtyard. The former use as an allotment garden settlement is reflected here in a patchwork based on the design grid. The differentiated design of the areas reflects a variety of functions. The majority of the residential units form interspersed living spaces. Residents have the opportunity to face the greenery outside on the one hand, and to participate in the life of the courtyard on the other.

Facade. A subtle color gradient extends over the entire pergola quarter. In the north, the neighboring City-Nord seems to color off, and in the southern area of the quarter, the red of the adjacent residential quarter Barmbek colors off. Overall, the façade is faced with a reddish-brown clinker brick in a semi-bond. At the height of the floors, the clinker bricks are formed as a relief: every second row of bricks jumps back in this area, creating a high degree of plasticity.
Project Info
Architects: blrm Architektinnen
Country: Germany, Hamburg
Area: 16600 m²
Year: 2023
Photographs: Joshua Delissen
Landscape Architecture: Michael Nagler Landschaftsarchitekt











Tags: 2023blrm ArchitektinnenGermanyHamburgJoshua DelissenPergolenviertel Residential Complex

Isabelle Laurent
Isabelle Laurent is a Built Projects Editor at Arch2O, recognized for her editorial insight and passion for contemporary architecture. She holds a Master’s in Architectural Theory from École Nationale Supérieure d’Architecture de Paris-Belleville. Before joining Arch2O in 2016, she worked in a Paris-based architectural office and taught as a faculty adjunct at the École Spéciale d’Architecture in Paris. Isabelle focuses on curating projects around sustainability, adaptive reuse, and urban resilience. With a background in design and communication, she brings clarity to complex ideas and plays a key role in shaping Arch2O’s editorial