
Madeline Brooks
Riverfront Transformation in Teluk Intan, “Industrial Heritage Reimagined” transforms a 3.21-acre derelict shipyard in Teluk Intan, Perak, into a sustainable headquarters for an oil palm plantation business and a vibrant community hub. The building, with its earthy red hues and lush greenery, subtly references the nature of the palm plantation industry.

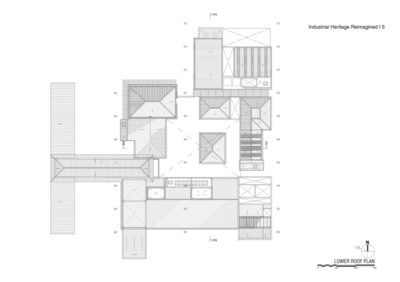
Designed around a central courtyard, the structure features a series of pavilions that offer both inward and outward-facing spaces, each capturing distinct views of the surrounding nature. The concept of a single, unified roof provides shelter from the tropical sun while enhancing the flow of space.

By integrating translucent rooflights, the design plays with light and shadow throughout the day, creating dynamic shifts in the space. This design avoids deep-plan layouts by creating multiple courtyards. To adapt to the tropical climate, multiple shading layers are used, including double planting inside and outside. Horizontal fins around the large shed and glass pavilions, positioned further inside, create a buffer from the sun. Timed trickle ventilation purges hot air after office hours, ensuring a fresh start each day.

Located near the Perak River, the building is elevated on the existing slab with backfill soil to prevent flooding. Double insulation in the roof and pavilions ensures comfort. The rear space facing the river will be transformed into a pickleball court and community area, adding social value. The water feature in the courtyard and curtain walling creates seamless reflections between old and new elements, blurring boundaries and enhancing the building’s poetic composition.
Project Info
Architects: A3 Projects, Arch Cubic
Country: Malaysia, Teluk Intan
Area: 3385 m²
Year: 2025
Photographs: Shooting Star PLT
Lead Team: Ar. Ho Choon Sin
Design Team: Ar. Kenny Chong, Suzy Lee,Andrew Foo
Interior Design: A3 Projects Sdn Bhd
Engineering & Consulting > Mechanical: Ever H Consulting
Engineering & Consulting > Civil: One Smart Engineering Sdn Bhd
Engineering & Consulting > Quantity Surveying: Q&C Jurukur Perunding
Landscape Architecture: Kenny Chong Architect



















Tags: 2025A3 ProjectsArch CubicMalaysiaRiverfront Transformation in Teluk IntanShooting Star PLTTeluk Intan

Madeline Brooks
Madeline Brooks is a Projects Editor at Arch2O, where she has been shaping and refining architectural content since March 2024. With over a decade of experience in editorial work, she has curated, revised, and published an array of projects covering architecture, urbanism, and public space design. A graduate of the Harvard University Graduate School of Design, Madeline brings a strong academic foundation and a discerning editorial eye to each piece she oversees. Since joining Arch2O, she has played a pivotal role in shaping the platform’s editorial direction, with a focus on sustainability, social relevance, and cutting-edge design. Madeline excels at translating complex architectural ideas into clear, engaging stories that resonate with both industry professionals and general readers. She works closely with architects, designers, and global contributors to ensure every project is presented with clarity, depth, and compelling visual narrative. Her editorial leadership continues to elevate Arch2O’s role in global architectural dialogue.