
Isabelle Laurent
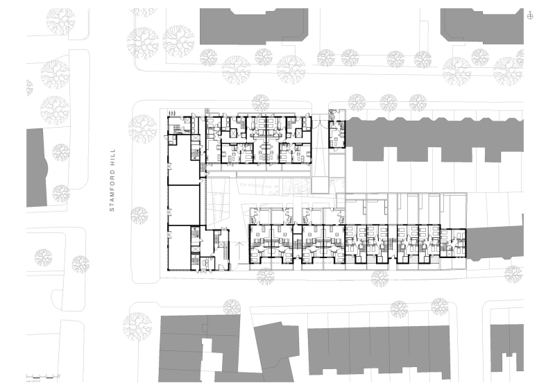
Stamford Hill, Stockwool has transformed a previously unattractive commercial site into a vibrant new mixed-use scheme in Stamford Hill. The carefully considered new buildings designed for Filey Group and Kingsbury, and delivered by Edinburgh-based architect ISA, enhance the distinctive character of Stoke Newington and Stamford Hill through their contemporary interpretation of existing typologies, creating a high-quality living environment which attracts new residents to the area encouraged by the range of housing typologies and tenures provided.

A steeply pitched roof references the adjacent 1930’s mansion blocks and allows further space for homes. Double and triple dormer windows also provide an enclosure for balconies. Smaller four-story blocks to the north and south of the site are sensitively designed to take account of the neighboring Victorian terraces, with a combination of brick and timber clad elevations.

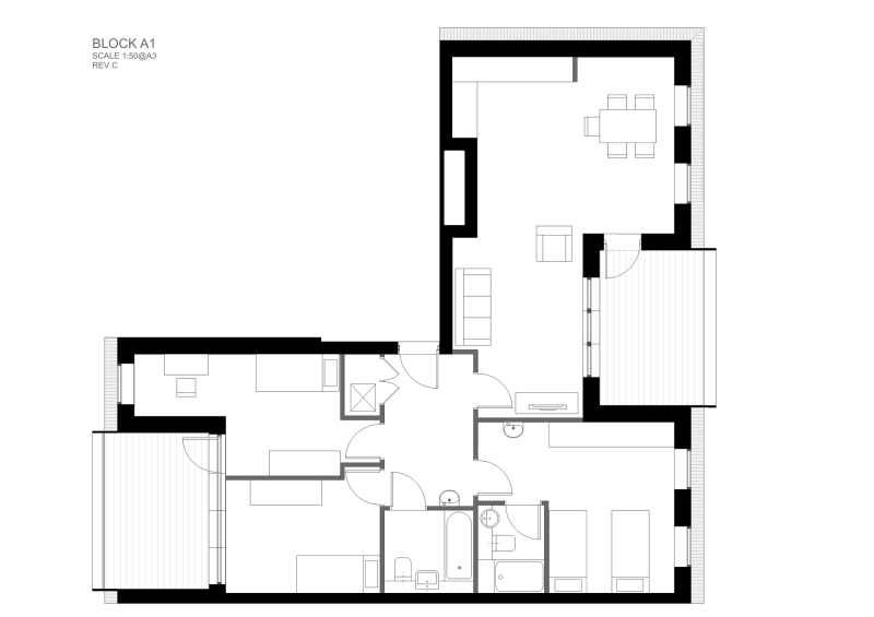
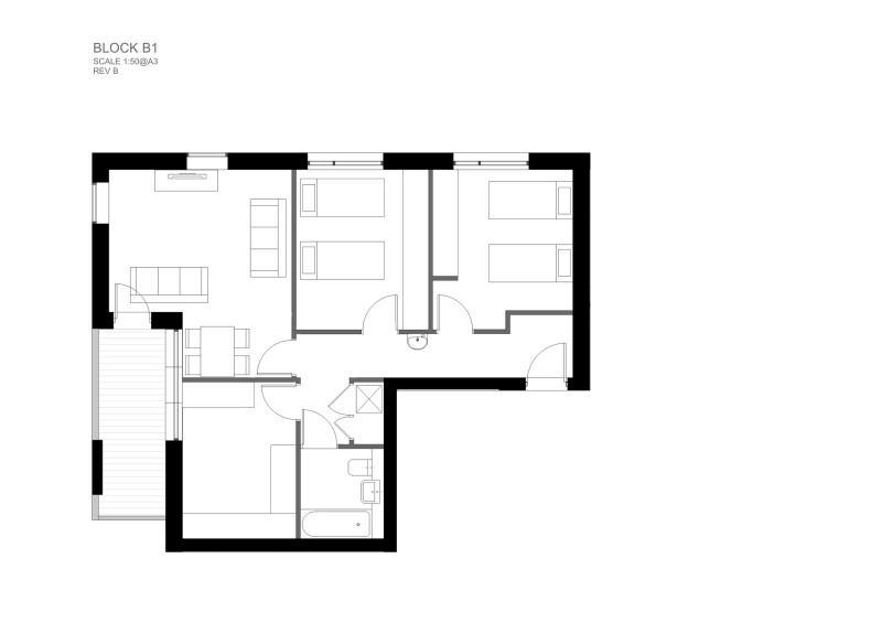
The development provides 68 new homes, retail and office accommodation with 95% of homes being a dual aspect. Those homes which are single aspect face south onto a private courtyard. Dwelling sizes range from one-bedroom apartments to four bedroom duplexes with a mix of affordable rent, shared ownership, and private sale. New and existing residents of the area will benefit from the more appropriate use of the site. The restored street frontage ties the scheme into the Victorian context to the south and extends the retail offer of Stamford Hill further north with smaller, more flexible units.

Jake Snell, Partner at Stockwool commented:

“We designed this scheme with the aim of returning a previously underused site back to the local community. The new buildings are respectful of the existing context and the mix of typologies and tenures offer genuine choice to new residents, whose presence will add to the cultural and social mix of the area.”
Project Info
Architects: Stockwool
Country: United Kingdom, Greater London
Area: 8200 m²
Year: 2018
Photographs: Morley von Sternberg
Executive Architect: ISA Architecture & Design
Services Engineer: Ilec-Imec Building Services
Structural Engineer: AMA Consulting Engineers
Contractor: Tolent Construction




















Tags: 2018BrickGreater LondonMorley von SternbergStamford HillSteelStockwoolUnited KingdomWood

Isabelle Laurent
Isabelle Laurent is a Built Projects Editor at Arch2O, recognized for her editorial insight and passion for contemporary architecture. She holds a Master’s in Architectural Theory from École Nationale Supérieure d’Architecture de Paris-Belleville. Before joining Arch2O in 2016, she worked in a Paris-based architectural office and taught as a faculty adjunct at the École Spéciale d’Architecture in Paris. Isabelle focuses on curating projects around sustainability, adaptive reuse, and urban resilience. With a background in design and communication, she brings clarity to complex ideas and plays a key role in shaping Arch2O’s editorial