Home Interiors These Glass Guesthouses Turn a Traditional Thatched Roof Into a Sculptural Icon

These Glass Guesthouses Turn a Traditional Thatched Roof Into a Sculptural Icon

by modernarchitectblog_admin

At first glance, it looks like a giant thatched roof has landed in the landscape and decided to stay. Look closer, and you realize it is sheltering an entire guesthouse made almost entirely of glass. Designed by YOD Group, these guesthouses flip the idea of a traditional rural home on its head, keeping the roof but stripping everything else back to light, transparency, and simplicity.

These Glass Guesthouses Turn a Traditional Thatched Roof Into a Sculptural Icon

The concept starts with a familiar house type and reduces it to its essentials. Thick walls and solid boundaries are replaced with full-height glazing, while the roof grows larger and more expressive.

That roof becomes the defining feature. Oversized and sculptural, it creates a strong silhouette that instantly sets the building apart, turning a practical element into the main architectural statement.

These Glass Guesthouses Turn a Traditional Thatched Roof Into a Sculptural Icon

These Glass Guesthouses Turn a Traditional Thatched Roof Into a Sculptural Icon

From the outside, the reed roof dominates. Its scale gives the building weight and presence, even though the walls beneath are almost invisible.

During the day, the glass facades visually disappear. This makes the roof appear as though it is floating above the ground, with the surrounding landscape flowing straight through the structure. At night, the glowing lights illuminate the interior.

These Glass Guesthouses Turn a Traditional Thatched Roof Into a Sculptural Icon

These Glass Guesthouses Turn a Traditional Thatched Roof Into a Sculptural Icon

These Glass Guesthouses Turn a Traditional Thatched Roof Into a Sculptural Icon

A wood door greets visitors, while a continuous stone carpet floor runs from inside to outside, designed to feel comfortable underfoot. Above, the roof dome rises to ten metres and is lined with wooden shingles, concealing all engineering systems and keeping the interior visually clean.

See also
Inside the home where black-and-wood steals the show

These Glass Guesthouses Turn a Traditional Thatched Roof Into a Sculptural Icon

These Glass Guesthouses Turn a Traditional Thatched Roof Into a Sculptural Icon

Inside, the living room sits on one side of a central concrete core. The space is deliberately simple, with a minimalist built-in fireplace as the main focal point.

There is no television. The idea is to replace screens with fire and views, encouraging guests to slow down and stay visually connected to what is happening outside.

These Glass Guesthouses Turn a Traditional Thatched Roof Into a Sculptural Icon

These Glass Guesthouses Turn a Traditional Thatched Roof Into a Sculptural Icon

These Glass Guesthouses Turn a Traditional Thatched Roof Into a Sculptural Icon

These Glass Guesthouses Turn a Traditional Thatched Roof Into a Sculptural Icon

The bedroom is positioned on the opposite side of the concrete core, creating a clear and balanced layout. Floor-to-ceiling glazing keeps the space open, while privacy is handled with dense but visually light curtains. These can be closed automatically using a control panel next to the bed.

These Glass Guesthouses Turn a Traditional Thatched Roof Into a Sculptural Icon

These Glass Guesthouses Turn a Traditional Thatched Roof Into a Sculptural Icon

These Glass Guesthouses Turn a Traditional Thatched Roof Into a Sculptural Icon

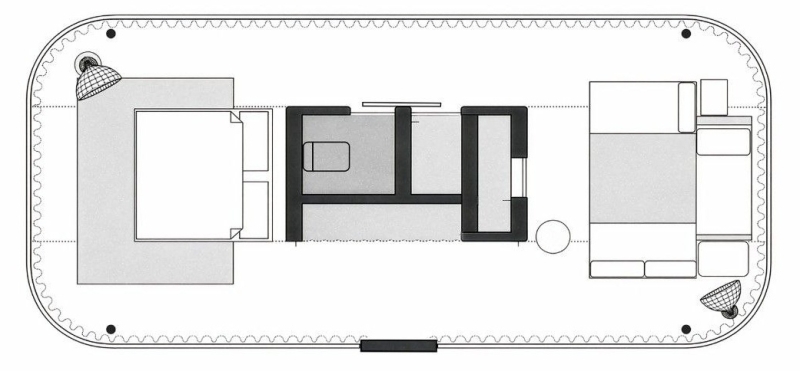
Here’s a look at the layout that shows the central concrete core, with the bedroom and living room at either end.

These Glass Guesthouses Turn a Traditional Thatched Roof Into a Sculptural Icon

By letting the roof do most of the talking, these guesthouses avoid excess. Glass walls, a simple plan, and a single dramatic gesture combine to create a place where architecture fades into the background.

Photography by Mykhailo Lukashuk | Architecture and design: YOD Group | Team: Volodymyr Nepyivoda, Dmytro Bonesco, Natalia Tymochesko, Yana Rogozhinska | Furniture: Noom

About Us

Modern Architect Blog – a hub for architecture news, interior design, furniture trends, and construction innovations. Explore the future of design!

©2025 Modernarchitectblog.com. All Right Reserved.