
Isabelle Laurent
White Nest Housing, Gwangju Metropolitan City is one with the largest share of apartments among all types of housing compared to other cities. Baegun-dong Housing is located in the detached housing area at Nam-gu(southern part) which is the original downtown of the metropolitan city. And it intended to unfold the possibility as an alternative type of residence in the town that is prevailed with the 30 to 40 years old red brick houses and indiscreetly built one-rooms. This space that has been built as a nest for the wife, a painter, and the husband, an architect, and their child who is just 18 months old, is reflecting the different sense of value toward the life of the couple who declared the voluntary exile from the monotonous residential environment.

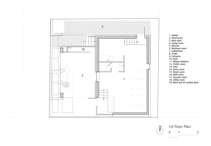
The site comes in contact with a 6 meters long front road and a 3 meters long cul-de-sac, and the entrances to the atelier in the first floor and to the residential area have been separately planned to secure their respective privacy. Removing the fence around the house but planting the black bamboo and herbaceous flowering plants, they added a green landscape to the soulless alleyways, and tried to pay back to the neighbors The family wished the open parking space on the front to be utilized by the pedestrians as a space where they can take a rest for a while and share a chat in a narrow alley.

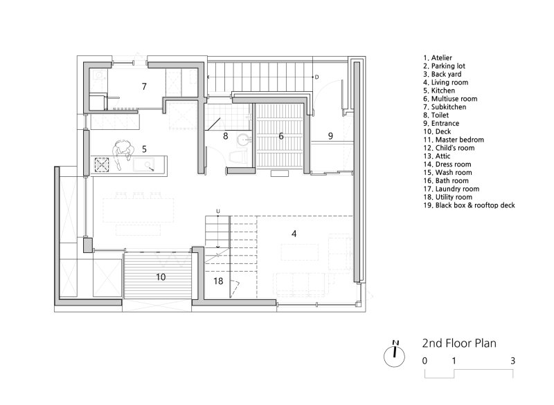
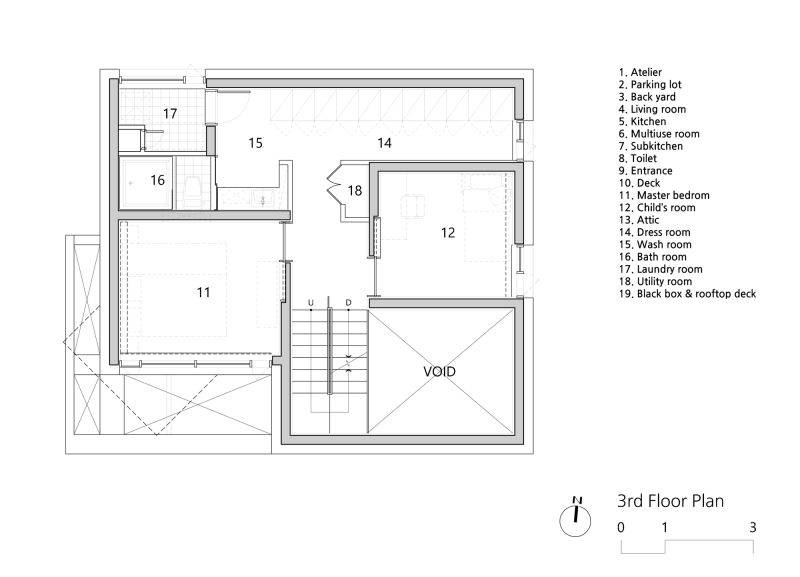
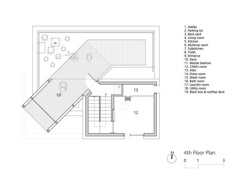
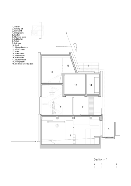
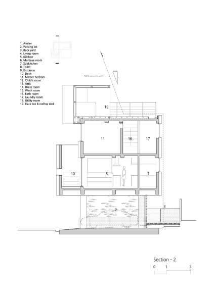
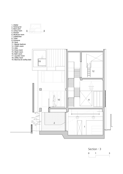
The atelier space designed to enable the artist who majored in fine arts since early childhood to continue her art activities, the free-standing wall and double-layer space installed to realize inner and outer spaces as open as possible in a narrow site, the multipurpose space that will be used gradually in different purposes and shapes as the child grows, the shade space to enhance the utilization of the rooftop overlooking Mudeungsan Mountain and the nearby Greenway Park, etc. are the most characteristic parts of this compact house. In particular, the free-standing wall in the south-west shields direct sunlight creates a bright and soft indoor environment with reflected light and provides the small pleasure of everyday life taking a view of the sky and mountain scenery.

The skip floor technique applied to some cross sections creates a section with as many volumes as possible in the area where the right to enjoy the sunshine is applied, and it creates a visually large space. The white stone coat used as the main material of the appearance emphasizes the feeling of mass more by using the technique of filtering black particles as much as possible and omitting the joints. The old bricks used as a sub-material were chosen in consideration of the respect for and harmony with the red bricks, the oldest texture, and color among the elements that make up the landscape of the town. The black box creating a shadowy space on the roof has been finished with corrosion stainless steel and redwood, which is offering a different vitality and fun to the alleyway by emphasizing the black color of stainless in the bright daytime and highlighting the warm texture and color of the wood reflected in the light during the dark night.
Project Info
Architects: PLAN Architects office
Country: South Korea, Nam-gu
Area: 183 m²
Year: 2016
Photographs: Joonhwan Yoon
Architect In Charge: Lim Tae Hyung
Design Team: Jo Hanne, Kim Yeeun
Clients: Lim Tae Hyung, Yoon Dami


































Tags: 2016ConcreteJoonhwan YoonNam-guPLAN Architects officeSouth KoreaSteelWhite Nest HousingWood

Isabelle Laurent
Isabelle Laurent is a Built Projects Editor at Arch2O, recognized for her editorial insight and passion for contemporary architecture. She holds a Master’s in Architectural Theory from École Nationale Supérieure d’Architecture de Paris-Belleville. Before joining Arch2O in 2016, she worked in a Paris-based architectural office and taught as a faculty adjunct at the École Spéciale d’Architecture in Paris. Isabelle focuses on curating projects around sustainability, adaptive reuse, and urban resilience. With a background in design and communication, she brings clarity to complex ideas and plays a key role in shaping Arch2O’s editorial