
Anastasia Andreieva
100 Stewart Hotel and Apartments, “It was an honor to work on such an important corner and intersection in Seattle. The project is adjacent to one of the city’s most important cultural institutions – Pike Place Market – and so even today with all the changes Seattle has experienced, the area still carries a little of the Seattle I recall when I moved here in 1974.” ―Tom Kundig, FAIA, RIBA, Design Principal

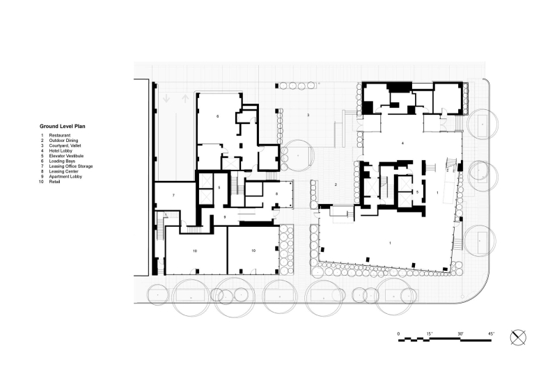
Located in the heart of downtown Seattle, 100 Stewart Hotel & Apartments serves as a contemporary landmark that visually and physically responds to the surrounding urban context. The site is situated adjacent to the historic Pike Place Market District and is neighbored by a range of buildings that represent Seattle’s rich history. For that reason, one of the primary architectural considerations of the project was the scale of the new structure and its relationship to smaller, older buildings in the surrounding area. The site’s position at a major axial grid shift also presented a unique opportunity to mark this significant intersection and act as a gateway between neighborhoods.

The building is composed of two primary elements that break the expression of the structure: a focal point “glass lantern” with geometric shifts that physically mimic the street grid alignment; and the adjoining frame of solid façades that provides a visual counterpoint.

“The site, which is located at an important intersection, is really at the heart of Seattle. The shifted axis of First Avenue―where it curves to meet the city’s typography―offered us an opportunity to really mark that place, an important intersection that joins the surrounding districts.” ― Kirsten R. Murray, FAIA, Principal

Drawing from its surrounding context the building features an interior courtyard that offers a quiet, protected area as an entry point to the hotel. The Pike Place Market District has a pattern of existing pedestrian circulation through courtyards and alleys that evoke a sense of wander and exploration. The 100 Stewart courtyard endeavors to connect the building to these pedestrian pathways in addition to serving to bring in natural light, air and ventilation. Punched openings higher up in the structure also allow people to see into the building, invoking a sense of visual accessibility.

Aside from the glass lantern element, the building’s street facing structure is an integrally colored cement panel façade system that fits with the surrounding historic brick buildings. Finishes within the courtyard are light and white to create more reflectivity.

Conceptually, the building is denoted by both introverted and extroverted spaces, while the iconic glass lantern is symbolic of the hotel’s relationship with Seattle, the Pacific Rim and wider world―it serves as an inviting and luminous entity.
Project Info
Architects: Olson Kundig
Country: United States, Seattle
Area: 248644 ft²
Year: 2016
Photographs: Nic Lehoux
Manufacturers AutoDesk, Swisspearl, Newforma, PPG Paints, Schüco, Trimble, Walters and Wolf: AutoDesk
Architect In Charge: Olson Kundig
Design Team: Tom Kundig, Kirsten R. Murray, Jeff Ocampo, Brian Walters, Hayden Robinson, Edward Lalonde, Evan Harlan, Lori Kirsis
Plumbing Engineer: Hawk Mechanical
Energy Analysis Consultant: Holaday-Parks
Building Envelope: RDH Building Science
Geotechnical: Associated Earth Sciences
General Contractor: Turner Construction
Elevator: Lerch Bates
Acoustical Engineer: BRC Acoustics
Mechanical Design: Glumac
Electrical Engineer: Holmes Electric
Interior Architect: Jensey Fey Architecture
Mechanical Engineer: Holaday-Parks
Cladding Installation: Raymond
Landscape: Swift Company
Structural Engineer: Magnusson Klemencic Associates
Civil: Magnusson Klemencic Associates

























Tags: 100 Stewart Hotel and Apartments2016Nic LehouxOlson KundigSeattleUnited States

Anastasia Andreieva
Anastasia Andreieva is an accomplished Architectural Projects Editor at Arch2O, bringing a unique blend of linguistic expertise and design enthusiasm to the team. Born and raised in Ukraine, she holds a Master’s degree in Languages from Taras Shevchenko National University of Kyiv. Her deep passion for architecture and visual storytelling led her to transition from translation and editorial roles into the world of design media. With a keen eye for conceptual clarity and narrative structure, Anastasia curates and presents global architectural projects with precision and flair. She is particularly drawn to parametric and digital design, cultural context, and emerging voices in architecture. When I’m not analyzing the latest architectural trends, you’ll probably find me searching for hidden gems in cityscapes or appreciating the beauty of well-crafted spaces. After all, great design—like great connections—can be found in the most unexpected places. Speaking of connections, because architecture isn’t the only thing that brings people together.