At first glance, this one bedroom Melbourne apartment looks calm and considered. Look closer and it becomes clear that almost nothing here is ordinary. Designed by Tsai Design, the compact home is a lesson in how smart planning, restraint and a few clever tricks can turn a small footprint into a genuinely flexible place to live.
With just 376 square feet (35 sqm) to work with, the brief was simple but ambitious. Fit the functions of a much larger home into a modest 1970s apartment, without it ever feeling cramped or compromised.
The transformation begins the moment you step inside. Rather than wasting precious space on a traditional hallway, Tsai Design introduced a custom wall unit that immediately goes to work. One side features a flexible pegboard system used to hang jackets, store umbrellas and organize shoes. The other side swaps hooks for fixed dowels, creating an unexpected but practical wine bottle storage zone.

From the entry, the apartment opens into the living space. Here, a built-in window seat is framed by shelving and cabinetry, offering both a place to sit and generous storage without adding bulk.
Underfoot, a silvery blue woven vinyl floor brings a subtle softness to the room. The finish nods to traditional tatami straw flooring, adding texture while keeping the overall look contemporary and light.

This living area also quietly functions as a home office. Behind closed cabinet doors sit a desk, computers and task lighting, all neatly hidden away when the workday ends. The ability to pack everything away was key to the design. By day, the space supports focused work. By night, it returns to being a relaxed living room, free from visual clutter.




A sliding door provides separation between the living area and the bedroom. On one side, it doubles as a whiteboard, adding another functional layer to the design. Constructed from translucent polycarbonate, the door allows light to pass through even when closed. This keeps the apartment feeling bright while maintaining privacy, an important balance in such a small home.

One of the apartment’s most impressive features is tucked quietly beside the kitchen. A narrow cavity between shelving and wall conceals the dining table entirely. When needed, the table slides out on a track and folds down into place, creating a floating effect that keeps the space visually light. The dining chairs follow the same logic, folding away neatly to avoid taking up valuable floor space.



The kitchen stretches an impressive 13 feet along one wall, a deliberate move to prioritize cooking and entertaining. Wrapped in timber, it houses the fridge and even a washing machine, both concealed within the cabinetry. Black accents create contrast throughout, from the matte black countertop to the sink, taps and utensils. The palette keeps the kitchen feeling grounded and intentional rather than busy.


Opposite the main kitchen run is another wall dedicated to storage. Cabinets hide small appliances like the toaster, coffee machine and rice cooker, allowing them to stay plugged in but out of sight. Above, open shelves with concealed lighting display glassware. At the very top, a dedicated shelf is reserved for a whiskey bottle collection, adding a personal touch without overwhelming the space.

At the end of the kitchen, a clever architectural move helps maximize natural light. The wall between the kitchen and the bathroom was removed and replaced with an internal window. Facing north, the bathroom window now shares daylight with the kitchen. A switchable film allows the glass to frost instantly for privacy, offering flexibility without sacrificing brightness.


In the bedroom, the timber used in the kitchen continues, creating a warm and minimalist backdrop. The timber wall doubles as a headboard, reinforcing the idea that every surface should work harder. A small cut-out reveals a fold-down bedside table, while a concealed door at the end of the wall leads to the bathroom. Only a leather pull hints at the hidden transition beyond.

The timber look extends into the bathroom through porcelain tiles that wrap both floors and walls. A green wall introduces a sense of the outdoors and can be seen from the kitchen, adding depth and softness to the apartment.
A fold-out clothes drying line is hidden within the timber wall, reinforcing the theme of concealed functionality. A glass shower screen separates the shower without visually closing off the space, while the frosted internal window remains visible from both rooms.


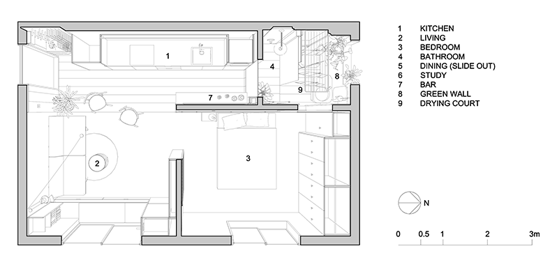
The floor plan reveals just how many hidden elements are packed into the apartment. From fold-down furniture to concealed storage and sliding partitions, every inch has been carefully considered.

Tsai Design’s approach shows that living small does not mean living with less. By knowing where to be generous and where to pull back, this Melbourne apartment delivers flexibility, comfort and style in equal measure.
Photography Tess Kelly | Design: Tsai Design | Joiner: Lee Cabinet