
Isabelle Laurent
MUWA NISEKO, This condominium hotel is located in a prime location directly connected to the Niseko Hirafu ski slopes in Hokkaido, Japan. The architecture expresses the characteristics of Niseko and its landscape dotted with small-scale buildings, and the gabled roofs characteristic of Hokkaido’s and the greater region’s traditional landscape context, while also incorporating the features of “condominium-style development,” where each unit has its own owner. By expressing these elements as a collection of gabled roofs, the design achieves both economic efficiency and rationality while preserving the landscape of Niseko. The hotel offers a variety of unique experiences, including guest rooms that blend seamlessly with the landscape, a lobby that frames the natural beauty of Niseko, and an open-air bath with views of Mt. Yōtei. This is an architecture that can only be found in this location.

The “condominium-style” exterior design creates a new Niseko landmark – This condominium hotel is located in the Niseko area of Hokkaido, a world-renowned ski resort that attracts overseas skiers and investors. It is connected directly to the ski slopes and offers prime views of Mt. Yotei and the birch forest, which are symbolic of the region. The site is located within a national park area, subject to various regulations under the Natural Parks Law, including building height, setback distances from property boundaries, floor area ratio, roof shapes, exterior materials, and color scheme. In response, this project incorporates the context of the Niseko area’s landscape characterized by scattered, small-scale buildings, gabled roofs reminiscent of Hokkaido’s traditional landscape, and the region’s history and culture. By balancing economic principles and rationality, the design achieves an architecture that preserves the scenery of Hokkaido and Niseko.

Japanese houses feature an engawa (buffer space) which gently connects exteriors and interiors. This know-how is passed down from our ancestors in order to facilitate harmonization with the harsh natural environment. It also serves as a device to delicately separate public and private spaces. Here, we have modernized the engawa by arranging it as a cylindrical balcony in each guest room, thereby balancing privacy and openness. This design also expresses the “condominium with individual owners” program as a collective of individual units, as reflected in the exterior. On the top floor, the engawa is designed in a gable roof shape — the basic form of Japanese architecture. The exterior, which features gable roofs with varying slopes in accordance with the internal plan, resonates with the surrounding beautiful mountain range and landscape, creating a new landscape in Niseko that evokes Japanese aesthetic sensibilities.

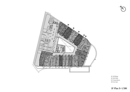
A “non-everyday” space that echoes the scenery of Niseko – The building was designed to maximize floor space within the site conditions restricted by the setback line, as stipulated by the Natural Parks Law and the nearby cliff. On the ground floor, guest rooms and an open-air bath with a view of Mt. Yotei are arranged in a square form around a courtyard at the center, designed to bring natural light to the common areas on the basement floor.

The entrance is located on the basement floor, and common areas such as the reception, restaurant, spa, hot springs are arranged around the “Four Seasons Garden” (shiki-no-niwa), a courtyard in the center of the building. The Garden has a grove of Japanese maple trees native to the town, while the ground is paved with rocks excavated from the site. The courtyard captures the natural beauty of Niseko and welcomes guests with different expressions throughout the seasons.

By creating a floor plan that offsets the irregular shape of the site, 34 unique guest units were created. Each unit features a three-color scheme that harmonizes with the exterior, while the penthouse units offer a variety of experiences by incorporating the recurring shape of the roof into the interior space, creating guest rooms that open up to the exterior. This architecture is unique to this location: guest units that blend seamlessly with the landscape, a lobby that showcases the changing seasons of Niseko, interiors adorned with Japanese elements such as latticework and earthen walls, and an open-air bath that offers a panoramic view of Mount Yōtei.

A structural design tailored to the harsh environment of heavy snowfall, enabling an extraordinary experience – To ensure seismic performance while randomly arranging a variety of guest units, load-bearing walls were strategically balanced across the floor plan. With a basic span configuration of 3.6m, the height of perimeter beams was minimized to maximize opening height within the limited floor height of 3.1m. Additionally, by eliminating beams that cross guest rooms in the structural design, constraints on guest room layouts were removed, enabling the creation of open guest rooms with maximum ceiling heights. Furthermore, by adopting an SRC Vierendeel frame structure for the inner perimeter, seismic performance was ensured while achieving a 10.8m span on the B1 floor, creating an attractive lobby space.

The sixth-floor open-air bath facing Mt. Yōtei was realized using an approximately 6m long cantilevered structure supported by wall beams on the 6th and 7th floors. While these wall beams create a different planar rigidity balance compared to the lower floors, the layout of the bearing walls was adjusted in plan to take the eccentricity into consideration.

The top floor features a concrete folded-plate roof structure, eliminating some columns to create an open living space. Since the folded roof primarily supports vertical loads, load-bearing walls were arranged along doorways and corridors to ensure sufficient seismic resistance.
Project Info
Architects: Nikken Sekkei
Country: Japan, Kutchan
Area: 20817 m²
Year: 2023
Photographs: Forward Stroke inc.
Construction Contractor: Taisei Corporation Sapporo Branch
Client: Hanwha Solutions Corporation, Hanwha Japan Co., Ltd., H Properties TMK















































Tags: 2023Forward Stroke inc.JapanKutchanMUWA NISEKONikken Sekkei

Isabelle Laurent
Isabelle Laurent is a Built Projects Editor at Arch2O, recognized for her editorial insight and passion for contemporary architecture. She holds a Master’s in Architectural Theory from École Nationale Supérieure d’Architecture de Paris-Belleville. Before joining Arch2O in 2016, she worked in a Paris-based architectural office and taught as a faculty adjunct at the École Spéciale d’Architecture in Paris. Isabelle focuses on curating projects around sustainability, adaptive reuse, and urban resilience. With a background in design and communication, she brings clarity to complex ideas and plays a key role in shaping Arch2O’s editorial