Home Architecture Black Slate, White Ash, and the Landscape That Shapes a Modern Home

Black Slate, White Ash, and the Landscape That Shapes a Modern Home

by modernarchitectblog_admin

Set on a park-like site in a northern suburb of Detroit, this Y shaped home opens toward the River Rouge and a landscape shaped over more than 40 years. Designed by architecture firm Disbrow Iannuzzi for a former curator of Asian art and gallery owner, the residence reflects a life spent collecting, observing, and refining. Using only white ash and black slate, the architecture creates a quiet framework for light, handcrafted objects, and carefully composed views that unfold throughout the day.

Black Slate, White Ash, and the Landscape That Shapes a Modern Home

Black Slate, White Ash, and the Landscape That Shapes a Modern Home

The entire project is built around two materials, white ash and black slate. The slate, sourced from a single quarry, appears throughout the site in multiple forms. It becomes roof shingles, wall stone, honed slabs for horizontal surfaces, crushed and compacted material for the driveway, and gabion filled retaining structures.

As the sun shifts throughout the day, the exterior changes with it. At times, veining and variation in the stone are clearly visible. In stronger light, shadow and texture define the surface, giving the slate a dramatic and constantly evolving character.

Black Slate, White Ash, and the Landscape That Shapes a Modern Home

Black Slate, White Ash, and the Landscape That Shapes a Modern Home

Black Slate, White Ash, and the Landscape That Shapes a Modern Home

Black Slate, White Ash, and the Landscape That Shapes a Modern Home

The south facing front entrance is carefully aligned with the sun’s seasonal movement. In winter, sunlight reaches deep into the space. In warmer months, the entry remains shaded. Each opening in the slate exterior reveals the warmth of the wood interior, clearly marking the transition from outside to inside.

Black Slate, White Ash, and the Landscape That Shapes a Modern Home

Black Slate, White Ash, and the Landscape That Shapes a Modern Home

Black Slate, White Ash, and the Landscape That Shapes a Modern Home

Black Slate, White Ash, and the Landscape That Shapes a Modern Home

The wood-lined living room is shaped by expansive glass walls that run floor to ceiling. These openings allow uninterrupted views of the site’s dramatic topography. The interior volumes remain calm and restrained, allowing the landscape to take visual priority throughout the day.

See also
Living on the Edge of a Park Changed How This Home Was Designed

Black Slate, White Ash, and the Landscape That Shapes a Modern Home

Black Slate, White Ash, and the Landscape That Shapes a Modern Home

The dining area continues this relationship with the outdoors. Views are intentionally framed, turning layered plantings, surfaces, and sculptural elements into focal points. The architecture supports gathering without competing with the surrounding scenery.

Black Slate, White Ash, and the Landscape That Shapes a Modern Home

Black Slate, White Ash, and the Landscape That Shapes a Modern Home

The kitchen sits comfortably within the flow of the home, with white ash surfaces maintaining visual continuity, while dark cabinetry and countertops contrast the interior spaces.

Black Slate, White Ash, and the Landscape That Shapes a Modern Home

Black Slate, White Ash, and the Landscape That Shapes a Modern Home

Large sliding doors open the interior to the wrap-around verandah that steps down to the garden.

Black Slate, White Ash, and the Landscape That Shapes a Modern Home

Black Slate, White Ash, and the Landscape That Shapes a Modern Home

Black Slate, White Ash, and the Landscape That Shapes a Modern Home

Black Slate, White Ash, and the Landscape That Shapes a Modern Home

Back inside and in the study, the color palette mimics the kitchen, with a window acting like an ever-changing artwork.

Black Slate, White Ash, and the Landscape That Shapes a Modern Home

Bedrooms and bathrooms continue the same quiet design. Warm wood surfaces and carefully placed openings provide privacy while keeping a constant visual connection to the outdoors.

Black Slate, White Ash, and the Landscape That Shapes a Modern Home

Black Slate, White Ash, and the Landscape That Shapes a Modern Home

Black Slate, White Ash, and the Landscape That Shapes a Modern Home

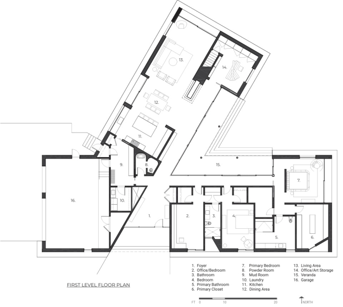
The Y shaped plan is central to how the house engages its site. Each wing opens toward a different portion of the landscape, allowing the home to frame multiple views and experiences within a single, cohesive structure.

Black Slate, White Ash, and the Landscape That Shapes a Modern Home

Black Slate, White Ash, and the Landscape That Shapes a Modern Home

Black Slate, White Ash, and the Landscape That Shapes a Modern Home

This home by Disbrow Iannuzzi is defined less by form and more by experience. By limiting the palette to white ash and black slate, the architecture steps aside and allows light, landscape, and time to take focus.

Photography: Rafael Gamo | Architecture firm: Disbrow Iannuzzi

About Us

Modern Architect Blog – a hub for architecture news, interior design, furniture trends, and construction innovations. Explore the future of design!

©2025 Modernarchitectblog.com. All Right Reserved.