
Isabelle Laurent
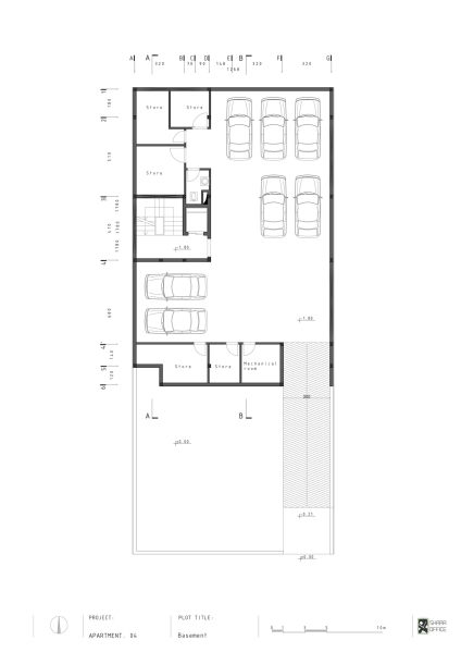
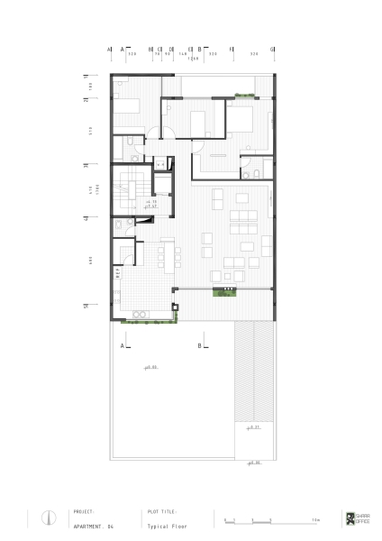
Apartment No. 04, The main idea in this project has been based on simplicity, standardization and readability of living space to increase users comfort. For designing this three-floor residential unit; despite the possibility of designing six residential units; the decision of designing three units (each floor one unit) was taken to improve the quality of living space and also create better usability and make spatial relationships more fluid and easier.

According to the criterion and mass located in site, public spaces has been designed in front; facing to the yard, and private spaces to use quite space without disturbing noises designed in the end of the building. To supply suitable daylight for private spaces, in the end of the building a large skylight was considered, while providing the light and ventilation of private spaces, also allowed the creation of terraces and small gardens for each space.

With the increase in residential space, considering large terrace in front of building was possible. And also, with the construction of a four-level building on the other side of the alley, two tertiary panels with wooden sprockets were used to preserve the privacy of the terraces by moving these panels and rotating the angles of interior space without spaces, different light and shadow plays occur on the terrace.
Project Info
Architects: ShaarOffice
Country: Iran, Shiraz
Area: 1000 m²
Year: 2018
Photographs: Amirali Ghaffari
Manufacturers Grohe, AGT, Alvand, Letto, SLP, Samsung: Grohe


































Tags: 2018Amirali GhaffariApartment No. 04ConcreteIranShaarOfficeShirazWood

Isabelle Laurent
Isabelle Laurent is a Built Projects Editor at Arch2O, recognized for her editorial insight and passion for contemporary architecture. She holds a Master’s in Architectural Theory from École Nationale Supérieure d’Architecture de Paris-Belleville. Before joining Arch2O in 2016, she worked in a Paris-based architectural office and taught as a faculty adjunct at the École Spéciale d’Architecture in Paris. Isabelle focuses on curating projects around sustainability, adaptive reuse, and urban resilience. With a background in design and communication, she brings clarity to complex ideas and plays a key role in shaping Arch2O’s editorial