
Isabelle Laurent
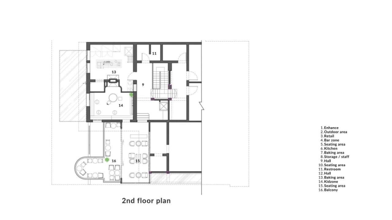
Fours Bakery was conceived as an “open bakery workshop” – a space where the process of making becomes a language of human connection. Located in a restored French colonial villa in the heart of Hanoi’s Old Quarter, the project stands at the intersection of memory, time, and craftsmanship.

The Concept Behind Fours Bakery
Rather than reconstructing the past, the design seeks to reinterpret it — allowing the house to “breathe” again through light, transparency, and the rhythm of contemporary life.

Materiality and Light in Fours Bakery
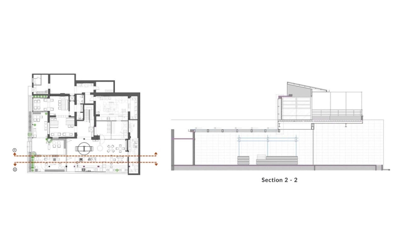
Guided by a spirit of honesty and simplicity, the space reveals its structure and material essence: raw textures are preserved, boundaries between inside and outside are softened, and natural light animates the architecture throughout the day. Here, architecture is not a static backdrop but a living structure, where people connect through daily rituals — baking, sharing, and simply being present together.

Fours Bakery is a humble experiment, yet it embodies a belief that architecture can hold both social and emotional meaning — a place where culture, craftsmanship, and modern life coexist naturally and enduringly.

Project Info:
- Architects: Mor studio
- Country: Vietnam, Hanoi
- Area: 450 m²
- Year: 2025
- Photographs: Le Duy Hung
- Lead Architects: Nguyen Manh Linh
- Lead Team: Nguyen Manh Linh
- Design Team: Pham Huyen My, Pham Khanh Ly
- Technical Team: Trần Khánh Linh
- General Contractor: SSPACE TS., JSC



































Tags: 2025Fours Bakery SignatureHanoiLe Duy HungMor studioVietnam

Isabelle Laurent
Isabelle Laurent is a Built Projects Editor at Arch2O, recognized for her editorial insight and passion for contemporary architecture. She holds a Master’s in Architectural Theory from École Nationale Supérieure d’Architecture de Paris-Belleville. Before joining Arch2O in 2016, she worked in a Paris-based architectural office and taught as a faculty adjunct at the École Spéciale d’Architecture in Paris. Isabelle focuses on curating projects around sustainability, adaptive reuse, and urban resilience. With a background in design and communication, she brings clarity to complex ideas and plays a key role in shaping Arch2O’s editorial