
Arch2O Team
GP Building is located in the traditional La Aguacatala neighborhood of the city of Medellin, a few meters from the river, surrounded by low-density projects. La Aguacatala, originally conceived as a neighborhood of single-family homes, has been transformed into a sector for institutional use and services. GP Building pays special attention to this, and its architecture, without denying its institutional status, is a response to its surroundings, it is the reinterpretation of those forms of living, of the domestic in its built form. In its facades we find brick, concrete, and metal; The relationship between the masonry and the domestic is intentional and arises from the need to rescue traditional construction systems typical of the city. Medellín is a brick-colored city.

The project is developed on a site with party walls in three of its facades, the most sensible thing is to separate them from their adjoining neighbors and take advantage of the views inside. It is from this architectural strategy that the project is made up of a series of interlocking volumes, displaced in the plan to build planters; vegetation is the fourth material, its contribution is intangible and it is rational to recognize the tropics that constitute its environment.

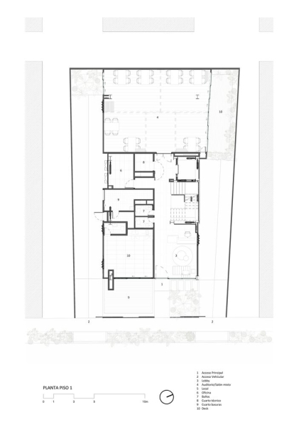
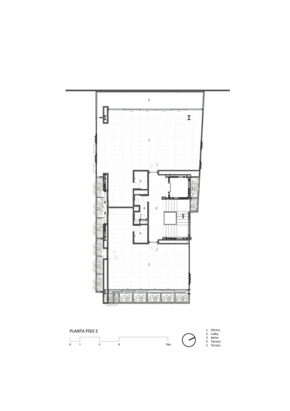
The programmatic distribution is logical: a first floor where the lobby is located and spaces for common use such as the auditorium and recreation patios for the staff, the program consisting of private offices is developed in higher levels, and use of the highest level in a rooftop mode; being located in the lower part of the valley and taking advantage of its status as a high-rise project, the terrace becomes a viewpoint of the city, the landscape of Medellin is its geography.

The architecture of the tropics is characterized by the generation of spaces of transition and the bioclimatic strategies of the project are nourished by this. Sunlight is addressed with metal sunshades and vegetation, cross ventilation is achieved with open plan spaces, and energy use is provided by solar panels located on the roof. The project is understood as an element located at 1490 meters above sea level.

Inside, we find a project that seeks to reinterpret institutional architecture. The layout of conventional offices goes against the teachings that the pandemic left us, we are digital nomads; living and exercising are inseparable terms, therefore, the interior design of the GP Building is a construction as a whole, seeking to be welcoming and domestic: terracotta colors, noble materials and giving a leading value to its metal structure, its scenic value is recognized, while giving meaning to its condition as a techno-constructed element. The building seeks to be efficient in the constructive, programmatic, and social aspects

With simple geometries and traditional construction, without pretending to be more than a new reading of the domestic, GP Building is the result of reinterpreting heritage, being critical of its forms, and building a temporary validity of a society in transition, transhumant, and in constant transformation.
Project Info:
- Architects: OA+
- Area: 989 m²
- Country: Medellín, Colombia
- Year: 2020
- Photographs: Mateo Soto
- Manufacturers: Cerchas y Concreto, DECORCERAMICA, El Anticuario de la Construcción
- Lead Architect : Danny Rozo
- Architect In Charge: Juan Diego Carvajal
- Interior Architecture: Susana Arroyave
- Structure Design: Estudio Estructural
- Landscape Design Architect: URRETA Arquitectura del Paisaje

































Tags: 2020ColombiaGP BuildingMateo SotoMedellínOA+

Arch2O Team