
Madeline Brooks
Phan Rang House is often referred to as the “Desert of Vietnam”. It endures a harsh climate, with up to 9 months of arid sunlight and prolonged drought. This sunburnt landscape is covered by endless fields of rocks & stone. Yet, these rocky surfaces are not lifeless or desolate—they are home to resilient vitality.

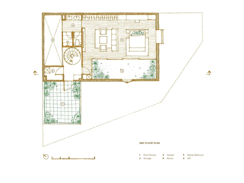
Located at a three-way intersection, the house benefits from open vistas, yet this advantage also presents significant challenges under the harsh conditions of Phan Rang’s climate. This place is directly exposed to intense sunlight from both the east and west. In addition, the southeastern edge of the site receives seasonal monsoon winds carrying the ocean’s heat and humidity into the house. This residence was designed for three generations living together. The requirements include the reflection of the local context while adapting well to the regional climate.

Design process – To reduce the intense heat from the east and west – especially under the arid sunlight of Phan Rang – the house is conceived as a stone slab being lifted up, in order to create a buffer space beneath, much like a massive canopy that shelters people from the sun. Private spaces are intentionally compacted; therefore, the house has voids for connections, thermal buffers, and cool air circulation.

The reflection of the local context

Adapting well to the regional climate

The existence of balconies, gardens, and windows not only in their aesthetic contribution to residential design, but also in their role as active elements that directly influence the environment and microclimate of the house, shaping the comfort and perception of its occupants.
Project Info
Architects: H.a
Country: Vietnam, Phan Rang–Tháp Chàm
Area: 104 m²
Year: 2023
Photographs: Quangdam



























Tags: 2023Branded Content MediaH.APhan Rang HousePhan Rang–Tháp ChàmQuangdamVietnam

Madeline Brooks
Madeline Brooks is a Projects Editor at Arch2O, where she has been shaping and refining architectural content since March 2024. With over a decade of experience in editorial work, she has curated, revised, and published an array of projects covering architecture, urbanism, and public space design. A graduate of the Harvard University Graduate School of Design, Madeline brings a strong academic foundation and a discerning editorial eye to each piece she oversees. Since joining Arch2O, she has played a pivotal role in shaping the platform’s editorial direction, with a focus on sustainability, social relevance, and cutting-edge design. Madeline excels at translating complex architectural ideas into clear, engaging stories that resonate with both industry professionals and general readers. She works closely with architects, designers, and global contributors to ensure every project is presented with clarity, depth, and compelling visual narrative. Her editorial leadership continues to elevate Arch2O’s role in global architectural dialogue.