
Isabelle Laurent
House in Thuan Hoa, The “three-compartment, two-wing” house (nhà ba gian, hai chái) is a hallmark of traditional rural architecture in Vietnam. Its name reflects its structure: three central bays (gian), with the middle bay serving as a reception area and ancestral altar, and the two flanking bays functioning as bedrooms or living spaces. On either side of the main hall are two smaller wings (chái), often used as kitchens, storage rooms, or additional sleeping quarters.

This typology has existed for centuries, deeply rooted in local culture and climate, yet it reveals certain limitations in the context of modern living: insufficient natural light, a lack of privacy, spatial divisions that no longer fit contemporary lifestyles, and difficulties in integrating modern amenities.

From these challenges, we sought a design that preserves the spirit of the three-compartment, two-wing house while adapting it to present-day needs: simple, cost-efficient, and scalable for rural housing across Vietnam.

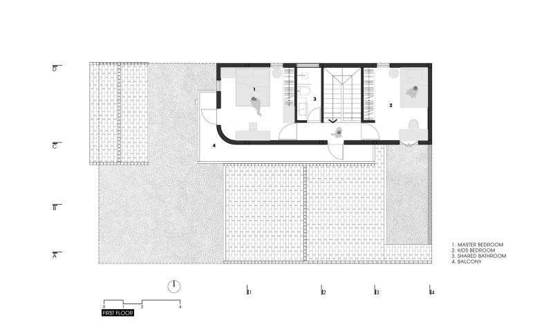
In our approach, one bay (gian) and one wing (chái) were removed. The ground floor now contains two bays for the living – kitchen – dining area, and one wing dedicated to worship. The entire ground floor is designed as an open-plan space, allowing for ample ventilation, natural light, and direct connection to the garden. The bedroom block takes the form of a perpendicular wing (chái ngang) and is placed on the upper floor, ensuring privacy and ease of air-conditioning installation.

Beyond the main spaces, we introduced multiple outdoor or semi-outdoor decks — flexible areas for children to play, for drying harvested rice, or simply for the owner to enjoy tea. Cultural and lifestyle elements remain intact: a large courtyard for community gatherings, a rainwater jar for washing after fieldwork, and a backyard for vegetables and poultry.

The materials and form evoke familiarity, making the house easy to embrace for rural residents, yet they bring a more comfortable, convenient way of living, where tradition and modernity coexist, allowing the past and the present to meet under one roof.
Project Info
Architects: 3fconcept
Country: Vietnam, Hue
Area: 163 m²
Year: 2025
Photographs: Nguyen Dang Hieu





























Tags: 20253fconceptGlassHouse in Thuan HoaHueNguyen Dang HieuVietnamWood

Isabelle Laurent
Isabelle Laurent is a Built Projects Editor at Arch2O, recognized for her editorial insight and passion for contemporary architecture. She holds a Master’s in Architectural Theory from École Nationale Supérieure d’Architecture de Paris-Belleville. Before joining Arch2O in 2016, she worked in a Paris-based architectural office and taught as a faculty adjunct at the École Spéciale d’Architecture in Paris. Isabelle focuses on curating projects around sustainability, adaptive reuse, and urban resilience. With a background in design and communication, she brings clarity to complex ideas and plays a key role in shaping Arch2O’s editorial