
Sophie Tremblay
The House of Espinheira was conceived from a concept that combines the pragmatism of form and the materials that provide resistance or protection from natural elements, resulting in a work of refined language. Its genesis lies in a initial gesture of folding, an architectural origami emerging from the simplicity of a paper napkin, exploring the relationship between form and function.

The volumetric composition reflects a formal purity that manifests in the honesty of the materials used. Exposed concrete shapes the surfaces of the walls and the roof slab, lending the construction a timeless robustness and a sculptural character. The concrete, with its raw texture, becomes the protagonist, highlighting the materiality and emphasizing the presence of time on its surface.

Natural wood introduces a thermal and sensory counterpoint, applied in the flooring, visually warming the space and providing a balanced dialogue between the artificial and the organic. Natural stone, used at some strategic points, anchors the house to the ground, reinforcing the relationship with the surrounding landscape and referring to the primary materiality of architecture.

The garden terrain is shaped by a single wall of exposed concrete that extends from the house, where an exterior staircase abuts, creating continuity of the built body and allowing access to the basement designated for parking. These elements not only structure the terrain’s slope but also reinforce the minimalist language of the construction, integrating it into the landscape.

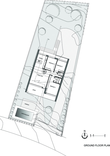
The programmatic organization of the house prioritizes spatial fluidity and interaction between environments. On the ground floor, the three bedrooms and social areas are arranged, while the living room and kitchen in open space open up in a double-height, expanding spatial perception and allowing for the existence of a mezzanine intended for an office suspended over the kitchen volume. This solution not only enhances the verticality of the space but also establishes new perspectives and internal visual relationships.

The house develops around its own plot, turning inward to maximize the incidence and quality of natural light. The openings are strategically placed to capture direct and indirect light, modulating illumination and creating dynamic atmospheres throughout the day, in a color palette that “paints” the gray of the exposed concrete. The sides of the house, in turn, are opaque, shielding from neighboring plots.

The water element, represented by the swimming pool, plays a fundamental role in the composition of the outdoor space. The pool is set within a scenario marked by a pre-existing natural stone wall, which dialogues with the other materials and reinforces the identity of the location. This rustic element establishes a relationship of contrast and continuity with the exposed concrete and wood, composing a balance between the artificial and the natural, the old and the new.

By reducing architecture to its essence, this project highlights materials as primordial elements of the living experience. The house, in its apparent simplicity, transcends the mere function of shelter, becoming a sensory and plastic expression of matter, light, and space.

Project info:
- Architects: Partner4Build
- Country: Portugal, Caldas da Rainha
- Area: 155 m²
- Year: 2025
- Photographs: Pedro Machado Photographer
- Lead Architects: João Luis Rocha Bento, Susana de Abreu Calvão de Oliveira Bento
- General Construction: Filomeno Pequicho – Majestic Ideas





























Tags: 2025Caldas da RainhaHouse of EspinheiraPartner4BuildPedro Machado PhotographerPortugal

Sophie Tremblay
Sophie Tremblay is a Montreal-based architectural editor and designer with a focus on sustainable urban development. A McGill University architecture graduate, she began her career in adaptive reuse, blending modern design with historical structures. As a Project Editor at Arch2O, she curates stories that connect traditional practice with forward-thinking design. Her writing highlights architecture’s role in community engagement and social impact. Sophie has contributed to Canadian Architect and continues to collaborate with local studios on community-driven projects throughout Quebec, maintaining a hands-on approach that informs both her design sensibility and editorial perspective.