
Madeline Brooks
Kampung Mrican Phase 1 and Microlibrary Pringwulung, Kampungs (villages) represent a distinct urban form in Indonesian cities, characterized by high-density, low-rise buildings. Kampung Mrican in Yogyakarta is in proximity to two large universities and therefore provides residential rentals too. Improving kampungs demands context-sensitive, acupunctural design rather than top-down planning, ensuring the preservation of original fabric and identity.

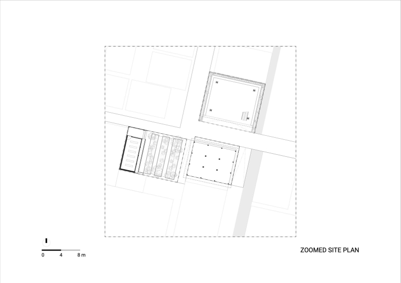
In collaboration with with PKP Directorate under the Ministry of Public Works and Housing, SHAU designed a library, playground, public space, flood-control post, a community garden, a bridge, and a sidewalk system. The aim is to enhance living conditions by upgrading infrastructure, improving pedestrian networks, rebranding the village, and incorporating educational and play elements.

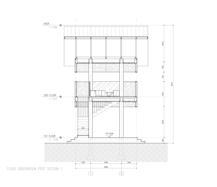
The planning process involved kampung residents. Urban and social analyses guided site selection, with the residents’ active participation in the design. The walkway along the river was a successful outcome of negotiations that necessitated a setback from the existing residences. Safety features, like flood-control posts and fences, were designed using an interpretation of local batik patterns, integrating green plants and street lighting. Sidewalks display historical Javanese texts conveying environmental and educational messages. The signages provide a contemporary identity with local context. The urban gardening community received upgraded facilities. They produce eco-enzyme products, an organic recycling practice.

Microlibrary Pringwulung was designed to allow various functions underneath the volume on stilts, including weddings, local events, and motorbike parking. Its terracotta facade plays with batik pattern motives from Yogyakarta, filtering sunlight and heat while allowing cross-ventilation. A single custom terracotta shingle is used and placed into five different positions on a steel mesh for easy construction. The terracotta is manufactured merely a few blocks away. The microlibrary, a renovated Joglo community space, and an upgraded urban farm form an activity hub in the village.

The playground combines cultural and play activities, integrating traditional games into the plaza above the wastewater treatment facility. It features swinging seats, merry-go-rounds, a slide, and a terracotta ‘Wayang’ (shadow puppet) figure of Gatotkaca, a favorite local hero from the traditional literature, which also corresponds with the street name.
Project Info
Architects: SHAU Indonesia
Country: Indonesia, Yogyakarta
Area: 4353 m²
Year: 2024
Photographs: Instansi Direktorat PKP
Lead Architects: Florian Heinzelmann, Daliana Suryawinata
Lead Team: Florian Heinzelmann, Daliana Suryawinata
Design Team: Aditya Kusuma, Aprilea Ariadi, Ben Kurniawan, Hoseo Viadolorosa, Muhammad Ichsan, Muhammad Arkan Haqqi, Zaky Abdullah, Bonaventura Rah Abisca, Arif Hida
Project Management: Instansi Direktorat PKP
Engineering & Consulting > Other: Pauline Boedianto
Engineering & Consulting > Mep: Ruang Jelajah
General Constructing: DIWONGSO AGUNG KONSTRUKSI
Engineering & Consulting > Civil: KOTAKU and DLH Kabupaten Sleman












































Tags: 2024IndonesiaInstansi Direktorat PKPKampung Mrican Phase 1 and Microlibrary PringwulungSHAU IndonesiaYogyakarta

Madeline Brooks
Madeline Brooks is a Projects Editor at Arch2O, where she has been shaping and refining architectural content since March 2024. With over a decade of experience in editorial work, she has curated, revised, and published an array of projects covering architecture, urbanism, and public space design. A graduate of the Harvard University Graduate School of Design, Madeline brings a strong academic foundation and a discerning editorial eye to each piece she oversees. Since joining Arch2O, she has played a pivotal role in shaping the platform’s editorial direction, with a focus on sustainability, social relevance, and cutting-edge design. Madeline excels at translating complex architectural ideas into clear, engaging stories that resonate with both industry professionals and general readers. She works closely with architects, designers, and global contributors to ensure every project is presented with clarity, depth, and compelling visual narrative. Her editorial leadership continues to elevate Arch2O’s role in global architectural dialogue.