
Madeline Brooks
Renovation of the Jiakaxia Ancient Courtyard, The Architectural Ark: Renovation of the Jiakaxia Ancient Courtyard in Barkhor Street — In Lhasa, the area around Barkhor Street, centered on the Jokhang Temple, stands as the city’s most bustling hub. Here, official residences of both monks and lay officials coexist with numerous civilian homes, shops, and inns, forming a unique spatial configuration of “urban-market and temple syncretism.” The project site, “Jiakaxia” (Tibetan for “Magpie Pavilion”), derives its name from the magpies that once populated the willow trees planted by Princess Wencheng. It embodies the profound bond of “harmony as one family” between the Han and Tibetan peoples. This two-story mixed-use courtyard, featuring a blockhouse-style structure, integrates historical Tibetan commercial architecture along the street with a modern “Paradise Time Bookstore” built by tenants in the late 1990s in the rear. Here, Tibetan stone masonry dialogues with contemporary elements like concrete, light steel structures, plastic canopies, and color steel panels.

Inspired by deep reverence for the ancient courtyard, a devout Nepalese merchant initiated its transformative renovation, aiming to rescue the millennium-old structure from disrepair and rebuild the chaotic rear additions. The project seeks to explore a model for preserving, inheriting, and evolving Tibetan architecture. The renovation adopts a dual strategy: restoring the traditional Tibetan craftsmanship of the front section while creating a serene contemporary “Pan-Tibetan-Pan-Chinese” courtyard in the constrained rear space. By integrating Han and Tibetan construction techniques, the new design breaks free from the dark, thick-walled, and small-windowed limitations of traditional Tibetan architecture, introducing large-span spaces and floor-to-ceiling windows to accommodate modern urban life.

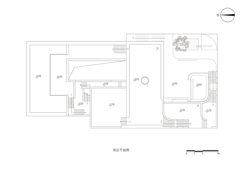
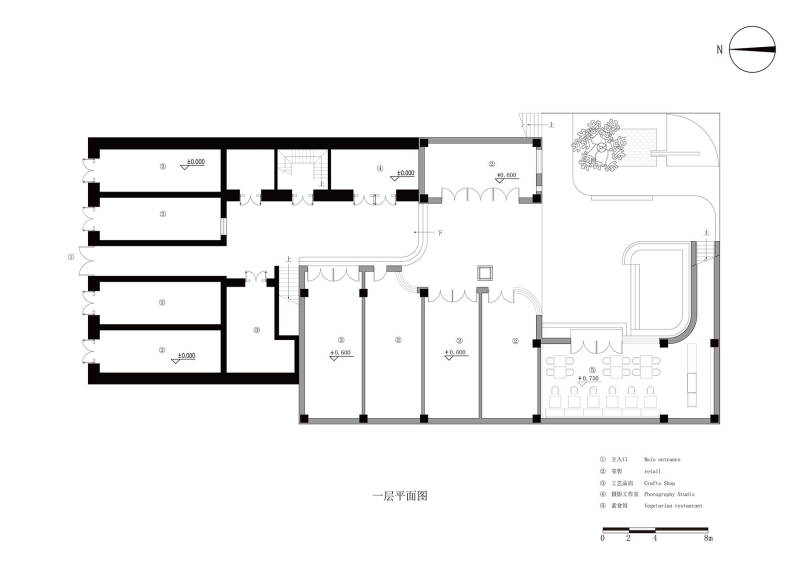
The renovation preserves the circulation of the prayer path, creating a navigable architectural experience. Entering from the main gate on Barkhor Street, visitors pass through a central exhibition hall to reach a sacred ancient well, said to have been used by the Sixth Dalai Lama, Tsangyang Gyatso, for tea. An atrium above the well frames a view of the sky, while the new architecture carefully circumvents the well to preserve its historical significance. On the rooftop, visitors can gaze at the grand Potala Palace, the golden roofs of Jokhang Temple, and the bustling Barkhor Street below, forming a dynamic urban 观景台 (viewing platform) that merges physical movement with visual exploration. Stairs from the inner courtyard lead to the rooftop, creating a three-dimensional circulation that makes the 1,000-square-meter space feel labyrinthine and rich in spatial variation.

The construction avoids two extremes: purely imitating Han Chinese concrete frameworks with superficial Tibetan symbols or relying entirely on costly traditional methods incompatible with modern needs. Instead, it integrates concrete frameworks with traditional Tibetan masonry techniques, thinning walls and enhancing natural light while maintaining architectural authenticity. For example, the “Jiabalé” stone-laying technique—stacking alternating layers of thick and thin stones with small infill stones to form a pagoda-like, earthquake-resistant structure—is adapted into 40cm-thick walls reinforced with steel bars every 50cm.

Wooden doors and windows crafted by carpenters from Shannan Prefecture, featuring traditional “Basu” eaves and “Feizimu” (overhanging wood) motifs, are seamlessly embedded into the concrete and stone framework. The exterior walls are coated with a historic sheep’s milk plaster from Yangbajing, blending white lime with milk, sugar, and honey for texture and durability.

The courtyard emerges as a complex of layered meanings—public yet intimate, transient yet eternal. Entering through a low porch from the dense urban fabric, visitors discover an open “pocket courtyard” where multi-level spaces connect functional areas, extending public life into the building’s interior. Arcing designs, inspired by the well’s location, guide movement and expand spatial perception, echoed in staircases, railings, and wall details. Now, urban wanderers and spiritual seekers coexist here, whether meditating, taking photos, or simply observing, transforming the courtyard into a crossroads where diverse social strata and identities converge across time and space.
Project Info
Architects: hyperSity Architects
Country: China, Lhasa
Area: 1100 m²
Year: 2024
photographs: Courtesy of hyperSity architects
Design Team: Li Shaojun, Yin Manyu, Na Risu Ma Xiaoqing, Wang Ziming











































Tags: 2024ChinahyperSity architectsLhasaRenovation of the Jiakaxia Ancient Courtyard

Madeline Brooks
Madeline Brooks is a Projects Editor at Arch2O, where she has been shaping and refining architectural content since March 2024. With over a decade of experience in editorial work, she has curated, revised, and published an array of projects covering architecture, urbanism, and public space design. A graduate of the Harvard University Graduate School of Design, Madeline brings a strong academic foundation and a discerning editorial eye to each piece she oversees. Since joining Arch2O, she has played a pivotal role in shaping the platform’s editorial direction, with a focus on sustainability, social relevance, and cutting-edge design. Madeline excels at translating complex architectural ideas into clear, engaging stories that resonate with both industry professionals and general readers. She works closely with architects, designers, and global contributors to ensure every project is presented with clarity, depth, and compelling visual narrative. Her editorial leadership continues to elevate Arch2O’s role in global architectural dialogue.