
Madeline Brooks
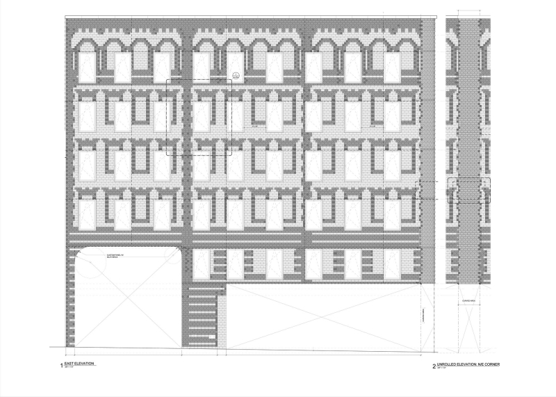
The Grand Mulberry Apartments Located at the intersection of Grand and Mulberry Streets in the heart of Little Italy, MA’s design of The Grand Mulberry draws inspiration from the rich heritage of historic Italianate tenements found throughout the neighborhood. The custom-profiled brick that clads the contemporary condominium building creates a spectral reference to this heritage.

While MA frequently takes inspiration from nearby buildings, the firm’s designs rarely replicate specific structures. The Grand Mulberry is somewhat of an exception—the facade is an abstraction of a literal copy. The classically inspired, irregular grouping of “ghost windows” creates tension with the regular cadence of the building’s real windows as a way to juxtapose past and present.

Traditionally, Italianate tenement buildings featured a tripartite façade that consisted of a base, middle, and top with differing details and brickwork used for each portion. Emulating this tradition, The Grand Mulberry’s façade pattern consists of banding at the building’s base on floors 1-2, pediment windows in the middle on floors 3-5, and arched windows and a cornice at the top portion on floor 6.

Quoining details define the bays. Given the project’s setting, the objective from the onset was to design a building that was contextual yet unmistakably contemporary. While the facade pattern is traditional, the application of the hand-molded domed bricks is very modern—each brick was carefully positioned within the double-stacked running bond coursing to present the illusion of a traditional Italianate façade.

The custom bricks come in roughly thirty different shapes to execute the pattern, including double bricks with double domes (the most prevalent), double bricks with a single dome, curved bricks, lipped bricks, and simple shapes without domes. All have a uniform red-orange clay color that pays further homage to the red brick buildings found in the neighborhood.

At the rear of the building, the 7th floor steps back to create a gracious terrace for the penthouse unit that faces both Grand and Mulberry Streets. The penthouse and the building’s bulkhead are wrapped in medium gray standing seam metal panels that create a subtle contrast of material and color. This allows these elements to stand alone but not detract from the brick façade below.
Project Info
Architects: Morris Adjmi Architects
Country: United States, Brooklyn
Area: 36000 ft²
Year: 2022
Photographs: Selvon Ramsawak, Glen-Gery
Design Principal: Morris Adjmi
Project Management: Brittany Macomber
Interior Design Lead: Melissa Shalloway
Managing Director: Michael Zweck-Bronner
Project Architect: Paul Tierman
Senior Designer: Thomas Wensing
Manufacturers: Glen-Gery, WindLoch
Contractor: Empire State Contractors
Structural: RCM/BGA Engineering
MEP: ABS Engineers
Civil: Sullivan Group Design LLC
Expeditor: JM Zoning
















Tags: 2022BrickBrooklynGlen-GeryMorris Adjmi ArchitectsSelvon RamsawakThe Grand Mulberry ApartmentsUnited States

Madeline Brooks
Madeline Brooks is a Projects Editor at Arch2O, where she has been shaping and refining architectural content since March 2024. With over a decade of experience in editorial work, she has curated, revised, and published an array of projects covering architecture, urbanism, and public space design. A graduate of the Harvard University Graduate School of Design, Madeline brings a strong academic foundation and a discerning editorial eye to each piece she oversees. Since joining Arch2O, she has played a pivotal role in shaping the platform’s editorial direction, with a focus on sustainability, social relevance, and cutting-edge design. Madeline excels at translating complex architectural ideas into clear, engaging stories that resonate with both industry professionals and general readers. She works closely with architects, designers, and global contributors to ensure every project is presented with clarity, depth, and compelling visual narrative. Her editorial leadership continues to elevate Arch2O’s role in global architectural dialogue.