
Isabelle Laurent
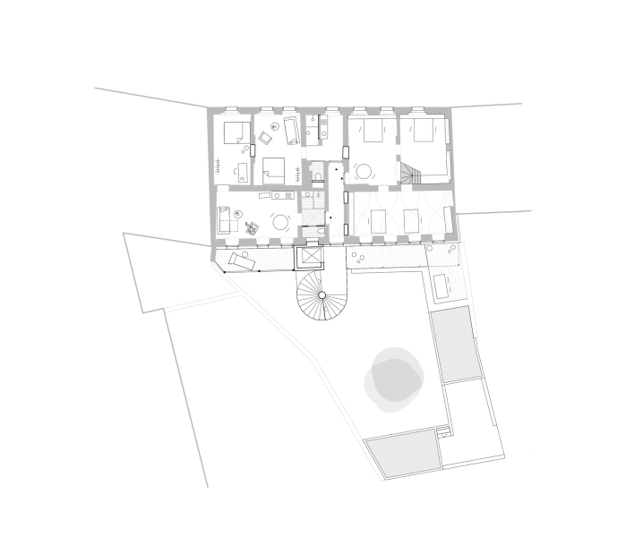
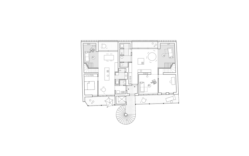
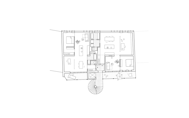
Town House in Linz, The Town House is located in the central street Lederergasse – a livable, quiet street that connects Linz’s main square, via the tobacco factory, with the port. The existing building – its primary substance from the 16th century – has been renovated and expanded. Over a process lasting several years, first, the premises on the ground floor were converted into the company’s own architect’s office. The apartments on the 1st and 2nd floor were cleared out and renovated down to their constructive structures. In the last two years, the inventory has been supplemented with an addition.

In order to enable a gentle renovation of the existing building without major interventions, during the process of changing the development plan regarding the new story number, the position of a new entrance with a connection core, staircase and lift has been also defined. In this way, the characteristics of the historical substance could be preserved in the best possible way. The addition is carried out according to ecological, economic, and structural requirements in mixed construction – mostly timber construction.

As an in-house project, this construction project has always been an experimental object for us for innovative renovation methods and special solutions. For example, the CLAY from the excavation on the ground floor was processed into rammed earth walls and these are now being used as prefabricated load-bearing parts when the story is added.

Using wood-concrete composite technology, the several hundred-year-old wooden ceilings could be preserved and strengthened in terms of statics and building physics. A five-story spiral staircase was built from specially developed precast concrete elements.

The free-standing staircase is wrapped in a metal net, which is to be overgrown with kiwi and vine tendrils over the next few years. In order to counteract the sealing in the best possible way, we have provided the roofs of the courtyard buildings with a green roof and the areas in the courtyard have been made robustly playable with water-permeable GRP grids.

RAILINGS that were disposed of during another construction project have been re-adapted and are now finding new uses in our balcony shelf. The wood addition shows up on the street side with a mullion and transom facade that covers several needs, such as fall protection, the fire barrier function, and the structure.

In addition to all these ecological, economic, and formal considerations, the social and community idea was also important to us. In addition to a LIVELY and LIVABLE townhouse with communicative balconies and courtyard areas, we also took our responsibility as a neighbor and counterpart seriously.

Balconies on the south facade and garden on the ground floor enable communication and the meeting area for workers of the office and inhabitants of the building. The street side should be just as friendly, with a ground floor that people like to walk along. Our small bench in front of the main facade is used to rest – we are very happy about that!
Project Info
Architects: mia2/Architektur
Country: Austria, Linz
Area: 1275 m²
Year: 2021
Photographs: Kurt Hörbst
Manufacturers Geberit, Duravit, Elmer , Forbo Flooring, Knauf, RÖFIX, Uginox: Geberit
Heating And Plumbing: Peter Bönisch Installationsges.m.b.H.
Lead Architects: Sandra Gnigler, Gunar Wilhelm
Structural Engineering: Kotlaba Ziviltechniker GmbH
Construction Unit: SIMADER, Baumeister und Zimmermeister GmbH



































Tags: 2021AustriaKurt HörbstLinzmia2/ArchitekturTown House in Linz

Isabelle Laurent
Isabelle Laurent is a Built Projects Editor at Arch2O, recognized for her editorial insight and passion for contemporary architecture. She holds a Master’s in Architectural Theory from École Nationale Supérieure d’Architecture de Paris-Belleville. Before joining Arch2O in 2016, she worked in a Paris-based architectural office and taught as a faculty adjunct at the École Spéciale d’Architecture in Paris. Isabelle focuses on curating projects around sustainability, adaptive reuse, and urban resilience. With a background in design and communication, she brings clarity to complex ideas and plays a key role in shaping Arch2O’s editorial