
Isabelle Laurent
The Screen Office within Tunisia’s premier business district, Les Berges du Lac 2, this edifice fully capitalizes on its prime location, situated at the heart of the country’s economic and financial activities, making it an ideal choice for businesses eager to thrive in this dynamic environment.

The design of “The Screen” posed a significant challenge for architects, who were tasked with making the most of a strategically located plot that could house a new urban landmark for the city. The objective was clear: to create a functional and iconic space that would attract tenants, visitors, and passersby while meeting contemporary standards of sustainability and comfort.

The project’s office-oriented purpose, decided by the client, aimed to optimize the accommodation of future businesses. The major challenge was to reinvent office space to anticipate future developments. Thus, the building’s architecture needed to incorporate essential features. The structural system of the project was at the core of its design.

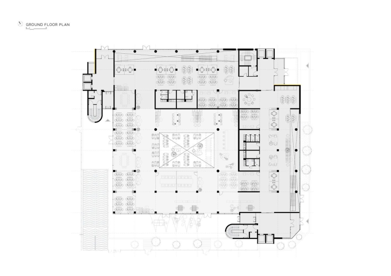
The floors are defined by a repetitive grid of 5.5m x 5.5m, with flat beams that do not protrude, offering great flexibility for technical systems and interior layouts. The project’s mass spans 16 meters in width, divided into three grids of varying heights. The central grid, primarily for circulation, houses all technical equipment, freeing up the maximum height for the grids facing the façades. This arrangement favors an abundance of natural light, thereby boosting productivity and the well-being of occupants. In Tunisia, where the number of sunny days is high, “The Screen” maximizes this energy resource through large windows adapted to the building’s orientations. High-performance solar and thermal glazing has been selected to create a bright and comfortable work environment.

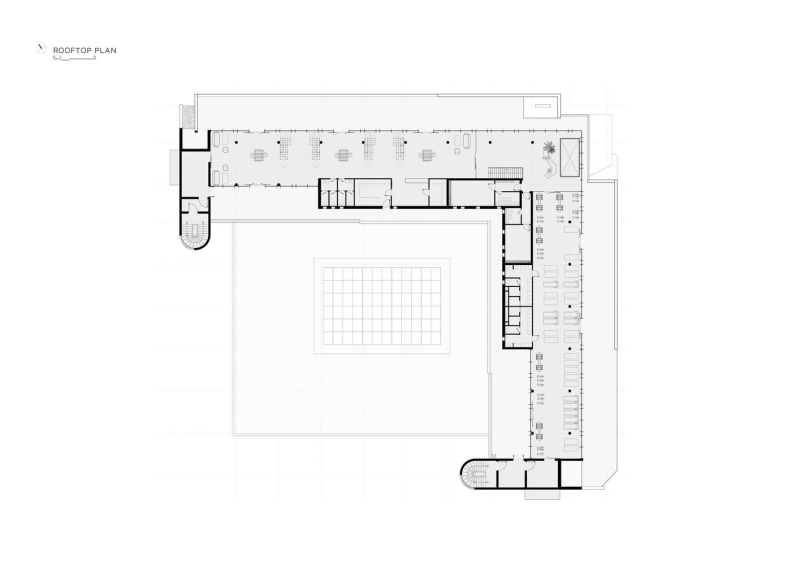
The project includes two basements dedicated to parking and technical spaces, as well as ten office floors connected by six panoramic elevators, offering occupants constant views of the urban environment. The top of “The Screen” is crowned by a rooftop with relaxation and dining areas, featuring a terrace that offers a 360° panoramic view of Tunis. This facility aims to combine relaxation and leisure for users.

Aesthetically, the building has been meticulously sculpted. The main entrance, marked by an imposing glass structure, is backed by a double-inclined reinforced concrete wall clad in fluorescent yellow HPL panels. This hue, rarely used in local architecture, gives the project a unique and stimulating identity. Covered by the same fluorescent yellow panels, a distinctive structural element juts out from the main façade in a cantilever, housing an olive tree, paying homage to Tunisia’s agricultural heritage and adding a touch of greenery to the composition.

The building’s exterior walls, made of double-layered thermal bricks locally produced with central rock wool insulation, reference Mediterranean architecture while being energy-efficient. Painted white, they seamlessly blend into the Tunisian architectural landscape. “The Screen” transforms the workspace by emphasizing openness, natural light, and the well-being of its occupants. This project embodies innovation and represents a notable advancement in office architecture in Tunisia.
Project info:
Architects: ARK-architecture, AUDA
Country: Tunisia, Tunis
Area: 23000 m²
Year: 2023
Photographs: Bilel Khemakhem
Manufacturers: AGC Glass, Elements, Fundermax, Knauf, LG, Raico aluminium, Schindler, TPR ALUMINIUM
Lead Architects: Mohamed Khemakhem, Bilel Khemakhem, Najib Saadallah
Technical Details, Site Supervision: Ghiath Chaar
Technical Development, Site Supervision: Amine Msakni
Graphic Design: Ahmed Arfaoui
Structural Engineer: Mohamed Ayadi
Electrical And Fire Safety Engineer: Mohamed El Amri
Fluids Engineer: Kais Tabka
Metal And Aluminum Structures Design Office: SIGMA Consulting
Inspection Office: MEDCONTROL
Pwc Interior Design: BAAK Studio
Site Management: Walid Kallel, Ahmed Kallel






















































Tags: 2023ARK-architectureAUDABilel KhemakhemThe Screen OfficeTunisTunisia

Isabelle Laurent
Isabelle Laurent is a Built Projects Editor at Arch2O, recognized for her editorial insight and passion for contemporary architecture. She holds a Master’s in Architectural Theory from École Nationale Supérieure d’Architecture de Paris-Belleville. Before joining Arch2O in 2016, she worked in a Paris-based architectural office and taught as a faculty adjunct at the École Spéciale d’Architecture in Paris. Isabelle focuses on curating projects around sustainability, adaptive reuse, and urban resilience. With a background in design and communication, she brings clarity to complex ideas and plays a key role in shaping Arch2O’s editorial