Home Interiors This Elevated Living Room Changed How a Home Meets the Shoreline

This Elevated Living Room Changed How a Home Meets the Shoreline

by modernarchitectblog_admin

This lakeside home on Lake Michigan was shaped by a simple challenge. New environmental rules changed where the house could sit, forcing a rethink of how it would relate to the shoreline.

Lucid Architecture answered by reorganizing the house vertically. Instead of spreading out across the land, the design concentrates daily life higher up, restoring views while reducing impact on the site.

This Elevated Living Room Changed How a Home Meets the Shoreline

Raising Daily Life

The new regulations required the house to move significantly inland from the water’s edge, placing it behind an existing bluff.

Rather than cutting into the landscape, the design lifts the main living spaces to the second level. This approach reopens views to the lake and beach while maintaining a more direct, human scale connection to the water.

A suspended living room volume stretches between the main house and a masonry fireplace, keeping the visual corridor through the site open and creating usable space at ground level beneath it.

This Elevated Living Room Changed How a Home Meets the Shoreline

This Elevated Living Room Changed How a Home Meets the Shoreline

This Elevated Living Room Changed How a Home Meets the Shoreline

This Elevated Living Room Changed How a Home Meets the Shoreline

Cladding Designed to Weather With the Site

The exterior combines unfinished Kebony wood, glass, and painted metal panel. Kebony is a thermally modified wood that will weather over time, reflecting different levels of exposure across the site. This approach reduces long term maintenance while allowing the house to visually settle into its environment.

This Elevated Living Room Changed How a Home Meets the Shoreline

This Elevated Living Room Changed How a Home Meets the Shoreline

A Suspended Space That Restores the View

The elevated living room becomes the center of the house and the key to preserving the view. By suspending this volume above grade, the design opens a clear visual path to the water while shaping a sheltered outdoor area below. That space can be used to escape a rain shower, store gear, or prepare for time outdoors.

See also
A Caribbean Interior That Feels Calm, Warm, and Unforced

This Elevated Living Room Changed How a Home Meets the Shoreline

This Elevated Living Room Changed How a Home Meets the Shoreline

This Elevated Living Room Changed How a Home Meets the Shoreline

A Sunlit Dining Space with a Pop of Color

A rich wood dining table anchors the room between the living area and kitchen, while the pops of red on the chairs add energy without feeling loud.

This Elevated Living Room Changed How a Home Meets the Shoreline

A Kitchen With Warm Wood

This airy kitchen leans into a soft, natural palette, with pale wood cabinetry and wide-plank floors that keep everything feeling light and easy. The standout ceiling, lined in warm wood boards and beams, adds texture overhead, especially with the simple black spotlights.

This Elevated Living Room Changed How a Home Meets the Shoreline

This Elevated Living Room Changed How a Home Meets the Shoreline

This Elevated Living Room Changed How a Home Meets the Shoreline

Enjoying the Outdoors

A protected covered deck sits adjacent to the main interior spaces. This extension allows gatherings to spill outside while keeping the interior footprint compact. It also reinforces the connection between daily life and the lakeside setting.

This Elevated Living Room Changed How a Home Meets the Shoreline

A Wood Lined Passage

The wood-lined hallway at the top of the stairs connects the social areas of the home to the bedrooms and bathrooms located on both levels of the home.

This Elevated Living Room Changed How a Home Meets the Shoreline

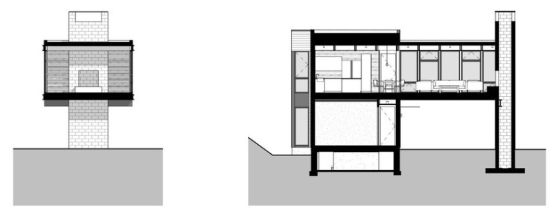
Architectural Drawings

Here’s a look at the architectural drawings for the home, showing the compact layout.

This Elevated Living Room Changed How a Home Meets the Shoreline

This Elevated Living Room Changed How a Home Meets the Shoreline

This Elevated Living Room Changed How a Home Meets the Shoreline

By lifting the living room, simplifying the plan, and choosing materials that age naturally, Lucid Architecture created a durable house that respects the land while restoring what mattered most. The view, the water, and the experience of being there.

Photography: Lucid Architecture

About Us

Modern Architect Blog – a hub for architecture news, interior design, furniture trends, and construction innovations. Explore the future of design!

©2025 Modernarchitectblog.com. All Right Reserved.