Home Architecture A House Built for Quiet Living in the Forest

A House Built for Quiet Living in the Forest

by modernarchitectblog_admin

BLACK STONE is a weekend house designed for stepping away from city life and slowing everything down. Set within a forested area of Dnipro, Ukraine, the home is organized around privacy, natural light, and a constant visual connection to nature.

Designed by SVOYA Studio, the new home brings architecture and interior design together as a single system. Every space faces inward toward a shared courtyard or outward to the forest, creating a calm, contained world built for family time and temporary living.

A Home Open to the Forest

The house, with its dark exterior and wood accents, is structured around a large inner courtyard. This courtyard becomes the central organizing element, shaping circulation and views.

All main living spaces are oriented toward this protected core, allowing the home to feel open without exposing it to the surrounding city. The forest context is treated as an extension of the architecture rather than a backdrop.

A House Built for Quiet Living in the Forest

A House Built for Quiet Living in the Forest

A House Built for Quiet Living in the Forest

A Living Space Open to Light and Forest Views

The living room opens directly toward both the courtyard and the forest beyond. Large panoramic windows bring the surrounding trees into view, making nature part of the interior experience.

A fireplace anchors the space and adds warmth, reinforcing the living room as a gathering place for family time and quiet evenings.

A House Built for Quiet Living in the Forest

A House Built for Quiet Living in the Forest

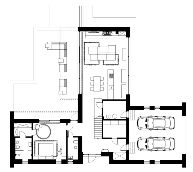
Where Cooking and Gathering Share One Space

This open-plan kitchen and dining space features smooth concrete floors, bright white walls, and warm wood details that keep it inviting. The speckled terrazzo island adds texture and a touch of playfulness, echoed by the arched wood cabinets that soften the modern lines, while a simple white table and light wood chairs define the dining area.

See also
A Garden Room Turns A 1930s House Into Everyday Living

A House Built for Quiet Living in the Forest

A House Built for Quiet Living in the Forest

A House Built for Quiet Living in the Forest

A House Built for Quiet Living in the Forest

A House Built for Quiet Living in the Forest

A House Built for Quiet Living in the Forest

Extending Daily Life Into the Forest

The terrace extends straight into the forest and acts as an outdoor continuation of the living area. It includes a lounge zone with a large sofa, an outdoor dining setup, and a summer kitchen with a grill.

A House Built for Quiet Living in the Forest

The Ground Floor Suite for Easy Weekend Living

The primary bedroom, with its wood-lined walls, is located on the ground floor, offering direct access to the main living areas while maintaining privacy. It includes a walk-in wardrobe and a private bathroom.

A House Built for Quiet Living in the Forest

A House Built for Quiet Living in the Forest

A House Built for Quiet Living in the Forest

A House Built for Quiet Living in the Forest

A Calm Transition Between Levels

The wood staircase connects the shared ground floor to the more private upper level. It functions as a transition between social and quiet zones within the house. Light and material choices keep the movement between floors calm and understated.

A House Built for Quiet Living in the Forest

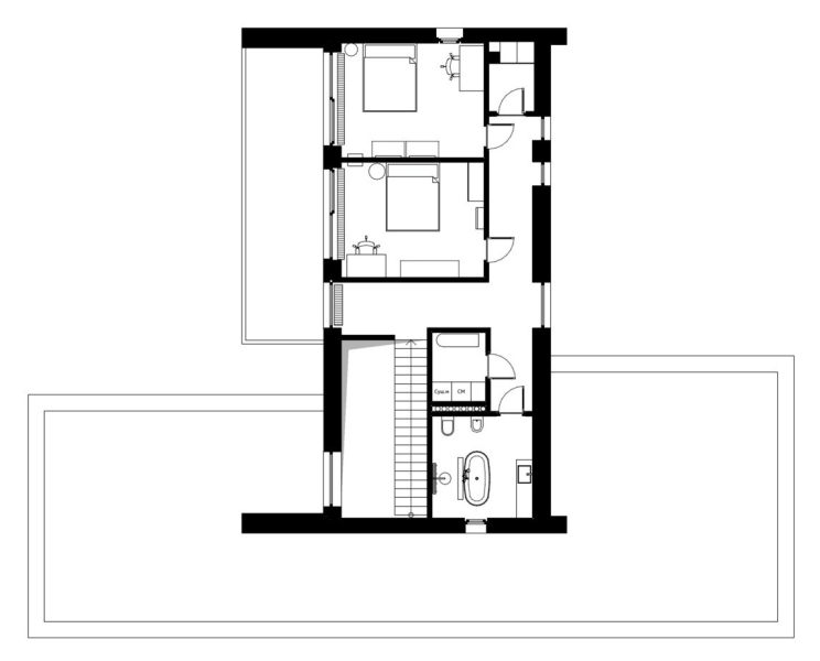
Calm Upstairs Bedrooms

Upstairs, the house shifts into a more private mode. Guest bedrooms are located on the second floor, separated from the main living spaces below. These rooms support family stays while maintaining a quieter, more contained atmosphere.

One of the bedrooms is composed as a quiet space, defined by soft beige upholstery and light wood floors. Sheer curtains soften daylight from the wide glass doors and frame views of the surrounding trees.

A House Built for Quiet Living in the Forest

A House Built for Quiet Living in the Forest

A House Built for Quiet Living in the Forest

A Shared Bathroom With a Consistent Material Language

In the upstairs bathroom, soft greige walls and pale terrazzo-style tiles shape a quiet, balanced space centered around a sculptural white soaking tub. Daylight filters through wood blinds, warming the oak vanity and drawing attention to the speckled stone countertop and partition.

A House Built for Quiet Living in the Forest

A House Built for Quiet Living in the Forest

Understanding the House Through Its Layout

The drawings reveal how privacy, openness, and nature are balanced through careful planning rather than added features.

A House Built for Quiet Living in the Forest

A House Built for Quiet Living in the Forest

BLACK STONE reflects a contemporary approach to residential design where architecture and interior design evolve together. Built on long-term trust between client and studio, the house prioritizes light, landscape, and meaningful family time.

Photography: Andrey Avdeenko | Design: SVOYA studio

About Us

Modern Architect Blog – a hub for architecture news, interior design, furniture trends, and construction innovations. Explore the future of design!

©2025 Modernarchitectblog.com. All Right Reserved.