
Madeline Brooks
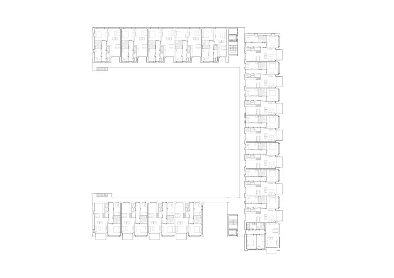
This multifunctional apartment building contains a large supermarket, retail space, and 83 social rental homes, of which 13 are quay-side houses. Westerschans 1A is the first phase of the new residential, work, and leisure area on the edge of central Goes. The Westerschans area directly borders the historic city centre, the ring-road, and the water of the Havenkanaal. Westerschans 1A is part of the urban development plan that Jeanne Dekkers Architectuur and ZOETMULDER designed for the entire Westerschans area.

This development consists of three building blocks with a varied program of social housing, owner-occupied apartments, commercial spaces, care homes, a supermarket, catering establishments, and a hotel. Articulation of the main form Westerschans 1A is located on the south side of the Westerschans in Goes and has a consistent architectural identity on all sides.

The height of the tower gives identity to the Westerschans, recognisable from a distance. In parallel, the concentrated program ensures that the remainder of the building retains a modest height. The building volume is further divided into different sections, giving the appearance of a reduced scale relative to the whole mass. An opening on the south side frames a view of the city centre.

Life on the quay On the ground floor a new housing type is introduced: the quay house. These quay houses consist of a half-width plan across two floors. As a result, there are thirteen front doors along the quay, which encourages inhabitation to break out along the car-free quay. The pilasters on the ground floor are finished with either a brick bench or planter. These built-in furnishings mark a semi-private space for the quay houses, stimulating use by the residents.

Project Info
Architects: Jeanne Dekkers Architectuur, Zoetmulder
Area: 12500 m²
Year: 2020
Country: Goes, The Netherlands
Photographs: Jeroen Verrecht
Manufacturers: Trespa, Rodruza
Lead Architects: Anton Zoetmulder, Jeanne Dekkers
Advisors: Lievense, Breda
Project Management: Marsaki, Goes
Contractor: Van der Poel, Terneuzen
Client: Beveland Wonen, Beveland Wonen, Goes


































Tags: 2020GoesJeanne Dekkers ArchitectuurJeroen VerrechtThe NetherlandsZoetmulder

Madeline Brooks
Madeline Brooks is a Projects Editor at Arch2O, where she has been shaping and refining architectural content since March 2024. With over a decade of experience in editorial work, she has curated, revised, and published an array of projects covering architecture, urbanism, and public space design. A graduate of the Harvard University Graduate School of Design, Madeline brings a strong academic foundation and a discerning editorial eye to each piece she oversees. Since joining Arch2O, she has played a pivotal role in shaping the platform’s editorial direction, with a focus on sustainability, social relevance, and cutting-edge design. Madeline excels at translating complex architectural ideas into clear, engaging stories that resonate with both industry professionals and general readers. She works closely with architects, designers, and global contributors to ensure every project is presented with clarity, depth, and compelling visual narrative. Her editorial leadership continues to elevate Arch2O’s role in global architectural dialogue.