In Seattle’s tight knit neighborhoods, where modest footprints meet big personality, Best Practice Architecture has crafted a home that proves downsizing can feel generous. Designed for homeowners who split their time between the city and their farm in the San Juan Islands, Washington, this compact 1,315 square foot (122sqm) dwelling blends traditional character with modern craftsmanship, creating a right sized retreat that feels warm, efficient, and quietly expressive.
Rad Trad began as an urban infill project, shaped with one goal in mind: create a home that lives beautifully without expanding beyond what the family truly needs. Best Practice achieved this by prioritizing spatial efficiency, leaning into the power of a single bold asymmetrical gable roof and resisting the urge to build a full second story.

The entryway immediately sets the tone for the home’s blend of traditional charm and contemporary craft. A soft green door welcomes you inside, its glass panels pulling natural light deep into the space.

Created for casual gatherings, the vaulted living room is the heart of the home. Exposed wood collar ties add warmth overhead, while a central fireplace anchors the room with a sense of nostalgic solidity.
Large sliding doors frame views to the yard, and the flexible layout makes space for everything from lively dinners to slow Sunday mornings with family. The salvaged wood beam mantle, sourced from the homeowner’s own barn, becomes a meaningful thread that ties the rural and urban halves of their life together.




The deck extends everyday living outdoors, with Ipe boards underfoot and a seamless flow from the living area to the garden and the garage.

The mudroom is both charming and practical at the same time. Soft blue cabinetry anchors the space, paired with leafy blue wallpaper that adds a playful, cottage feel. Gray hex tile flooring stands up to muddy shoes, while the pale green door and tiny cafe curtain keep the small space welcoming, and the built-in cubbies and a simple bench finish off the space.

In the kitchen, Shaker style cabinetry painted in a calming and neutral tone sits alongside a white oak island topped with Sea Pearl quartzite, creating a warm and grounded centerpiece. Soapstone perimeter counters add depth, while a mix of brass hardware, warm white tile, and polished chrome fixtures brings subtle variation without visual clutter.


The hallway feels like a calm little runway with soft natural light washing over the pale wood floors, built-in shelves, and cabinetry.
The primary suite is designed with efficiency and serenity in mind. Floor to ceiling shaker casework replaces bulky traditional closets, offering storage that feels cohesive rather than heavy. This built in approach continues the home’s focus on clean lines and continuity.



In the ensuite bathroom, natural stone and soft toned tile create a classic calming atmosphere. Carrara and Caesarstone surfaces balance elegance with durability, while a metallic fixture introduces a bright, timeless accent.

The second bathroom leans into personality. Classic materials like Carrara marble and honed tile meet playful lighting and patterned wallpaper chosen by the homeowners. The result is a room that feels crisp, charming, and decidedly less formal than the primary suite, echoing the home’s balance of modern simplicity and traditional expression.

The flexible office space at the center of the home doubles as a guest room. A built in desk and white oak shelving keep workday essentials organized, while custom cabinetry conceals clutter behind clean shaker fronts. This space can effortlessly transition from office to guest room, reflecting the homeowners’ need for adaptable living without excess.

A striking alternating tread staircase leads to the loft. Compact, sculptural, and designed with precision, it reflects Best Practice’s commitment to spatial efficiency. The stair treads create a rhythmic visual moment, becoming a functional centerpiece rather than an afterthought.


The loft space carved beneath the south facing dormer serves as a cozy bedroom, perfect for visiting grandchildren. Warm light filters in, creating a tucked away escape that feels playful yet peaceful. Collaborating with Harriot Valentine, Best Practice refined the roof truss profile to ensure every inch of this compact space feels comfortable and usable.

Tucked within the loft is a small painting studio, designed as a retreat for creativity. While modest in size, it benefits from the dormer’s natural light and the quiet separation from the main level, offering a purposeful space that elevates the overall functionality of the home.

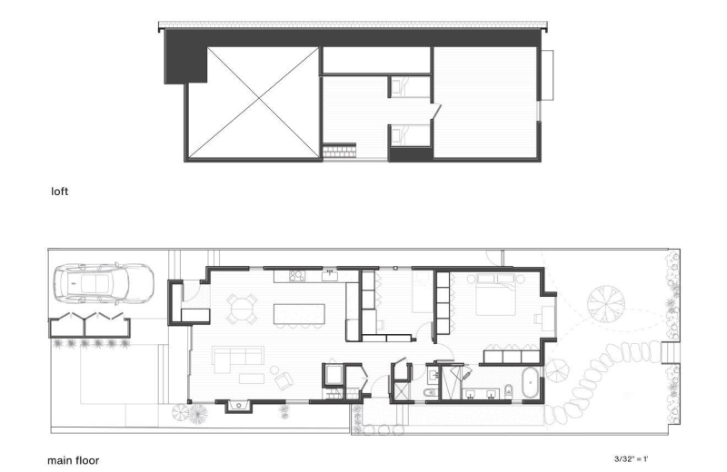
Here’s a look at the architectural drawings for the home.



Rad Trad is a home shaped by intention. Best Practice Architecture has created something that balances modern living with traditional charm, making each space work harder without feeling constrained. The result is a compact Seattle home that feels timeless, expressive, and uniquely personal to the family who calls it home.
Photography by Rafael Soldi | Architect: Best Practice Architecture | Contractor: Summit Development | Engineer: Harriott Valentine Engineers | Landscape Design: Stillpoint Studio | Cabinetry: Spencer Cabinets, LLC | Kitchen Island: Cooper Woodworks