
Arch2O Team
The Gray Niva Pool House is a year-round play, swim, exercise, and recreational sanctuary built in Accord, NY. While technically a natatorium (a structure built around – not adjacent to – a pool, Gray Niva really functions as both an indoor and outdoor pool.

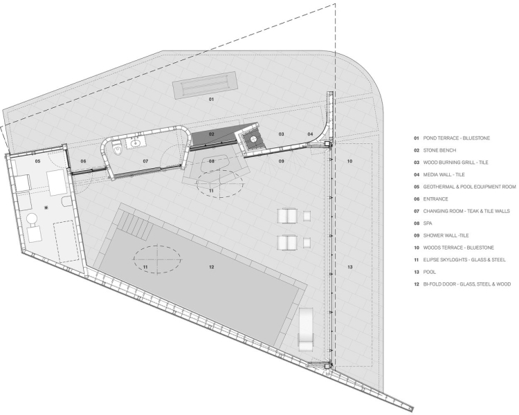
The pool and surrounding space feel inviting in winter or summer and are used throughout the year. Gracious openings, in the form of two large elliptical skylights and a south-facing, wall-sized glass door, bring the sky and earth in, integrating the interior space holistically with the landscape. In the colder months, the pool and deck are enclosed and enjoy light via the skylights and glass wall. In the warmer months, the south wall opens and extends the deck outside to create an indoor/outdoor solarium.

In addition to the south deck, there is an east-facing terrace with a teak-covered wall, bench seating and a steel wood-burning grill. The directionally angled roof provides shade throughout the day and expands the view outwards and over the aerated pond on the property. Additionally, there is a bathroom and changing area, double interior showers, a bar space, and an equipment room for the controls and pool toys.

The natatorium was designed and built with dedication to green design and maintenance. The base of this is a geothermal hydronic system and a reclaiming hydronic dehumidifying system that both heat and cools the space and the pool itself. Other details help maintain a small footprint: the openings and roof are specifically oriented to utilize the seasonal angles of the sun and take advantage of or minimize light and heat; airflow is maximized through strategic cross-ventilation, and the super-insulated walls and roof ensure optimal temperature retention.
Project Info :
- Architects: GAuthier Architects
- Country: Accord, United States
- Area: 2000 ft²
- Year: 2021
- Photographs: Naho Kubota
- Manufacturers: Beltile , Build Green SIPS, Corrugated Metals , Eliptipar Lighting, HVACquick, Schweiss, WASCO Skylights
- Lead Architects: Douglas Gauthier
- Project Team: Mel Agosto, Randy Armas, Michael Hoehn, Christopher Tomasetti, Ziyue Wang

















Tags: 2021AccordGAuthier ArchitectsGray Niva Pool HouseNaho KubotaUnited States

Arch2O Team