
Madeline Brooks
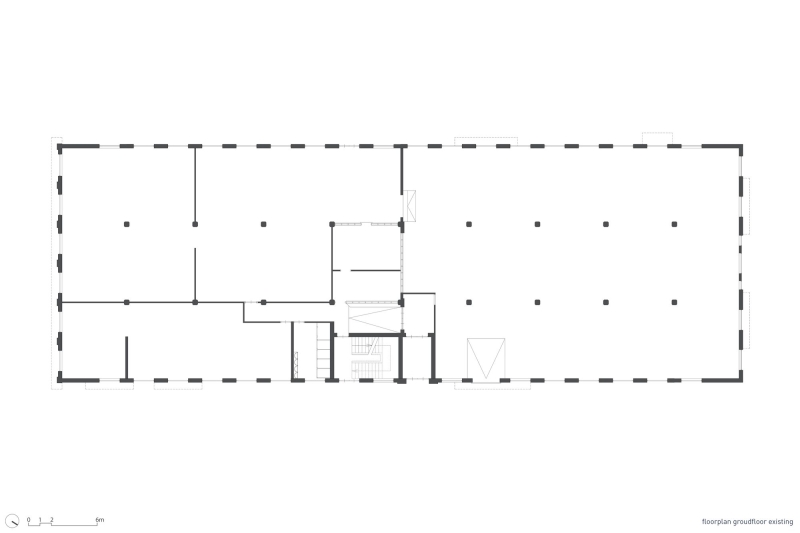
De Lakfabriek is part of the former leather factory complex KVL, which for years was one of the largest leather producers in Europe. De Lakfabriek initially served to paint the leather sheets, subsequently it functionated as a technical service. In 2001 the company ceased operations and closed their doors.

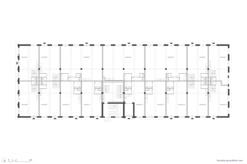
Since then, the factory complex have been largely restored, redesigned and has been unfolding itself into a lively and attractive area. De Lakfabriek is the first repurposed building on the site with a residential destination; the building has been transformed by Wenink Holtkamp Architects on behalf of BOEi and Nico de Bont TBI.

The building, designed in 1925 by architect A. Benoit, is characterized by an unambiguous brick architecture. The rigid division of the façade openings and the vertical brickwork elements results in a rhythmic facade.

Preserving the industrial character of the former factory building was one of the core values of the transformation. This is exemplified by the raw concrete structure which has been left visible as much as possible in the interior of the housing units.

The industrial look is maintained in the façade by the use of new slender aluminum window frames with a classic profile that refer to the original steel window frames, which unfortunately could not be preserved.

By adding a glass extension to the roof an extra building layer is created. The modern and minimalistic structure clearly distinguishes itself from the existing architecture through language and materialization, but suits itself in a natural way into the whole. On the top floor, roof terraces are created by placing the extension backwards in relation to the existing façade.

The 25 living units are realized in three different types: studios, apartments and ground-based homes. The layout of each house is designed in consultation with the future residents, accompanied by Wenink Holtkamp Architecten. This concept resulted in a colorful range of housing types, “The house as a custom-made suit for the residents.”
Project Info
Architects: Wenink Holtkamp Architecten
Country: The Netherlands
Area: 1200 m²
Year: 2018
Photographs: Tim Van de Velde
Manufacturers Reynaers Aluminium, Alhako, Betopor, Breman, Waxed Wood: Reynaers Aluminium
Developer Industrial Heritage: BOEi
Contractor / Developer: Nico De Bont TBI
Electrical Installation: Copal
Mechanical Installation: Van Thiel Optimaal
Constructor: Vianen Bouwadvies





























Tags: 2018BrickConcreteDe LakfabriekGlassThe NetherlandsTim Van de VeldeWenink Holtkamp Architecten

Madeline Brooks
Madeline Brooks is a Projects Editor at Arch2O, where she has been shaping and refining architectural content since March 2024. With over a decade of experience in editorial work, she has curated, revised, and published an array of projects covering architecture, urbanism, and public space design. A graduate of the Harvard University Graduate School of Design, Madeline brings a strong academic foundation and a discerning editorial eye to each piece she oversees. Since joining Arch2O, she has played a pivotal role in shaping the platform’s editorial direction, with a focus on sustainability, social relevance, and cutting-edge design. Madeline excels at translating complex architectural ideas into clear, engaging stories that resonate with both industry professionals and general readers. She works closely with architects, designers, and global contributors to ensure every project is presented with clarity, depth, and compelling visual narrative. Her editorial leadership continues to elevate Arch2O’s role in global architectural dialogue.