
Madeline Brooks
TJ House, The project comprised the fitout of a residential apartment in a new building in Braddon, ACT Australia. The apartment is located within one of Canberra’s busiest precincts and has wonderful eastern views across the suburbs of Ainslie & Braddon and to Parliament House and Civic to the south. The project was a team effort between client/builder, joiner, architect and carpenters. The clients’ clear vision for the character of the space led the detailing and material choice.

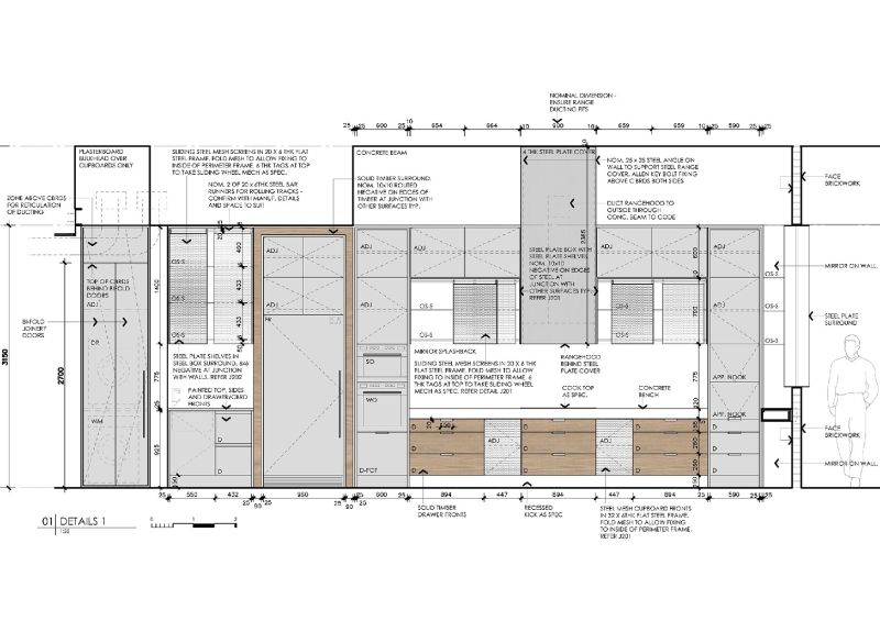
The fitout has an industrial character partly reminiscent of the old workshops common throughout Braddon in previous years. The palette of steel plate, concrete, glass, recycled brick and timber combine to give a contemporary and individualised character to this apartment. There is a high level of precision and craftsmanship evident in all elements.

The project includes the use of mild steel plate for bench tops, shelving, cupboard fronts and door/window reveals. Recycled hardwood has been used in joinery fronts, wet area bench tops & vanities and wall cladding. Recycled red brick (with “frogs” out in some cases) provides a clear and obvious link to the most common material used in early Canberra building. Rooms are designed as flexible spaces – the study has a large steel and glass sliding door that can be used to open or close that space from the main living area. The client created and built a drop down dining table that acts as a light box when lifted to the ceiling and not in use giving the living area more space for larger gatherings.

The high levels of interior thermal mass provided by the exposed concrete slab and brick walls assists in passive cooling of the apartment in summer, and allow for some direct thermal gain from morning sun in winter.

The apartment provides a unique living setting for the owners and has the ability to be “opened and closed” as required during trips away – it is a low maintenance dwelling with excellent access to the facilities of the nearby city.
Project Info
Architects: Ben Walker Architects
Country: Australia, Braddon
Area: 163 m²
Year: 2016
Photographs: Lightstudies
Manufacturers Gaggenau, Alape, Apaiser: Gaggenau















Tags: 2016AustraliaBen Walker ArchitectsBraddonBrickConcreteLightstudiesTJ HouseWood

Madeline Brooks
Madeline Brooks is a Projects Editor at Arch2O, where she has been shaping and refining architectural content since March 2024. With over a decade of experience in editorial work, she has curated, revised, and published an array of projects covering architecture, urbanism, and public space design. A graduate of the Harvard University Graduate School of Design, Madeline brings a strong academic foundation and a discerning editorial eye to each piece she oversees. Since joining Arch2O, she has played a pivotal role in shaping the platform’s editorial direction, with a focus on sustainability, social relevance, and cutting-edge design. Madeline excels at translating complex architectural ideas into clear, engaging stories that resonate with both industry professionals and general readers. She works closely with architects, designers, and global contributors to ensure every project is presented with clarity, depth, and compelling visual narrative. Her editorial leadership continues to elevate Arch2O’s role in global architectural dialogue.