Home Interiors Inside an Architect’s Tokyo Home Designed to Be Lived in and Looked At

Inside an Architect’s Tokyo Home Designed to Be Lived in and Looked At

by modernarchitectblog_admin

In a dense Tokyo neighborhood, this architect’s home had one clear challenge. How to bring light, openness, and life into a site surrounded by neighboring houses.

Designed by Hiroyuki Oinuma of HOAA, this home uses a north facing window, a curved garden, and carefully choreographed movement to turn daily routines into moments of connection with the city, without giving anything away.

A House Shaped by Its Surroundings

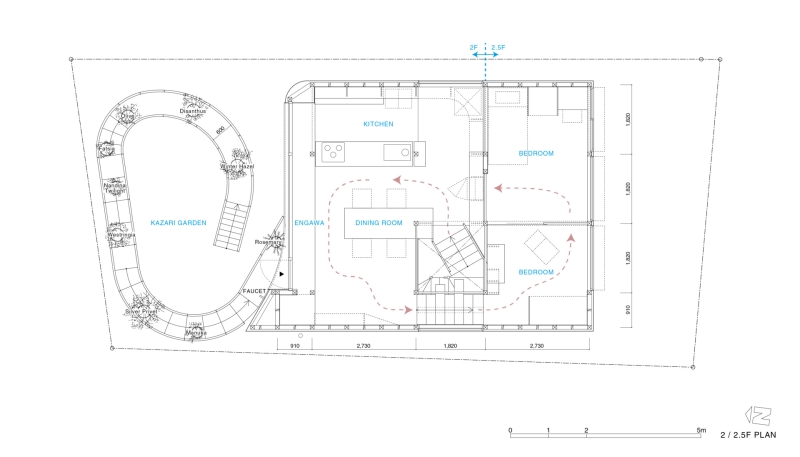
The site is enclosed on almost all sides by neighboring homes, with only the road to the north offering openness. A large window was placed along this edge, but light and outlook were not guaranteed.

Rather than forcing a conventional garden into the plan, the solution was to extend outward. The house reaches toward the street through a gently curved terrace on the second floor.

Inside an Architect’s Tokyo Home Designed to Be Lived in and Looked At

The Kazari Garden

This curved terrace, called the Kazari Garden, wraps along the road in search of sunlight. Its smooth form steps out of the building’s shadow, bringing brightness and movement into the view from the dining room window.

The garden also works as a buffer. It softens the boundary between the city and the home, creating distance without isolation and openness without exposure.

Inside an Architect’s Tokyo Home Designed to Be Lived in and Looked At

Opening Daily Life to the Street

Stepping into the Kazari Garden to water plants becomes a public moment. Passersby notice. Conversations begin. Children stop and react.

Here, ornament is not applied to the building itself. Instead, plants and displayed objects create psychological connections between people, the house, and the city.

See also
Before & After - A Mid-Century Modern Renovation In Oregon

Inside an Architect’s Tokyo Home Designed to Be Lived in and Looked At

Living Between Two Gardens

Inside, the house uses a split floor layout that responds to changes in ground level. Views are carefully framed toward both the Kazari Garden and a back garden, creating a constant visual dialogue with greenery.

Movement through the home follows a spiral circulation that alternates between these two outdoor spaces. Daily paths are never static, and the gardens remain present from multiple angles.

Inside an Architect’s Tokyo Home Designed to Be Lived in and Looked At

Inside an Architect’s Tokyo Home Designed to Be Lived in and Looked At

Inside an Architect’s Tokyo Home Designed to Be Lived in and Looked At

A Home That Displays Life

Shelving lines the circulation routes, filled with vessels, books, photographs, and plants. These objects are treated as records of life rather than decoration.

By surrounding movement with these personal items, the house introduces a gentle sense of tension, similar to walking through a small art museum. It encourages awareness, reflection, and a more mindful way of living.

Inside an Architect’s Tokyo Home Designed to Be Lived in and Looked At

Inside an Architect’s Tokyo Home Designed to Be Lived in and Looked At

The home brings together living and working spaces within a single interior framework. It functions as both an architect’s residence and office, with daily home life unfolding around a north facing dining room that looks out to the Kazari Garden, while the office looks outwards to the secondary garden.

Inside an Architect’s Tokyo Home Designed to Be Lived in and Looked At

Inside an Architect’s Tokyo Home Designed to Be Lived in and Looked At

Inside an Architect’s Tokyo Home Designed to Be Lived in and Looked At

Inside an Architect’s Tokyo Home Designed to Be Lived in and Looked At

Inside an Architect’s Tokyo Home Designed to Be Lived in and Looked At

Watch the video to see a closer look at the home.

The architectural drawings clarify the ideas behind the house. They show how the split floor layout responds to the site’s elevation difference and how circulation spirals between the Kazari Garden and the Back Garden.

Inside an Architect’s Tokyo Home Designed to Be Lived in and Looked At

Inside an Architect’s Tokyo Home Designed to Be Lived in and Looked At

Inside an Architect’s Tokyo Home Designed to Be Lived in and Looked At

Inside an Architect’s Tokyo Home Designed to Be Lived in and Looked At

Together, the house, garden, and objects form a way of living that stays open to the city.

Photography by Takuya Seki | Architect: Hiroyuki Oinuma / HOAA | Structural Engineer: Yuta Mino / MSE | Contractor: Yamashita Construction

About Us

Modern Architect Blog – a hub for architecture news, interior design, furniture trends, and construction innovations. Explore the future of design!

©2025 Modernarchitectblog.com. All Right Reserved.