
Anastasia Andreieva
Jinnovation Park, A “high-tech community in the sky” was created on the site of this former furniture factory. What once was a production space with heavy pollution was transformed into a technological park for the robotics industry, with dozens of high-tech companies and R+D centers.

The park’s proximity to top universities and high-tech companies ensured it reached full occupation for its 1.2 million square feet of renovated space.

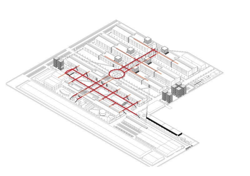
A raised pedestrian promenade connects all refurbished buildings, establishing an outdoor linkage, much like the “high-line” project in Chelsea, New York City. The entire factory’s open space and internal street space were redesigned with a new landscape featuring hidden technology, spatial flexibility, and local vegetation that maintains the memory of the place.

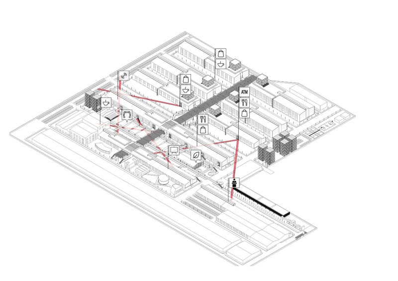
The park is also filled with various amenities: A large gym, one of the best indoor climbing spaces in the city, marathon running tracks, a multi-usage event space with outdoor theater seating, cafes and cafeterias, etc.
Project Info
Architects: Chiasmus Partners
Area: 120000 m²
Year: 2021
Country: Hai Dian Qu, China
Photographs: Arch-Exist
Landscape: ATLAS,Architectural Design and Research Institute of Tsinghua University
Collaborators: Shanghai Hui Yi Construction Development Co., Ltd.
Architect In Charge: James Wei Ke
Partner In Charge: James Wei Ke, Hyunho Lee
Design Team: Fengkun Yin, Xiangkun Bu, Jianhui Yuan, Rui Guo, Yiyan Li, Jose Yuste
Construction: Beijing Architectural Decoration Design & Engineering Co., Ltd.
Clients: Jinnovation Park
































Tags: 2021Arch-ExistChiasmus PartnersChinaHai Dian Qu

Anastasia Andreieva
Anastasia Andreieva is an accomplished Architectural Projects Editor at Arch2O, bringing a unique blend of linguistic expertise and design enthusiasm to the team. Born and raised in Ukraine, she holds a Master’s degree in Languages from Taras Shevchenko National University of Kyiv. Her deep passion for architecture and visual storytelling led her to transition from translation and editorial roles into the world of design media. With a keen eye for conceptual clarity and narrative structure, Anastasia curates and presents global architectural projects with precision and flair. She is particularly drawn to parametric and digital design, cultural context, and emerging voices in architecture. When I’m not analyzing the latest architectural trends, you’ll probably find me searching for hidden gems in cityscapes or appreciating the beauty of well-crafted spaces. After all, great design—like great connections—can be found in the most unexpected places. Speaking of connections, because architecture isn’t the only thing that brings people together.